• 20

南區新建案 <唐盟淳然> 主打兩房雙衛浴 三面採光((屋主群成立ING))

asdfqwwww wrote:
想了解價格和格局,謝...(恕刪)


以上都回覆訊息了

如果有需要了解 再私訊我,謝謝
想要了解相關資訊
謝謝
想知道資訊,麻煩私訊我一下,感謝。
想知道資訊,麻煩私訊我一下,感謝。
想知道資訊,麻煩私訊我一下,感謝

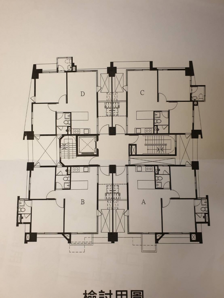
上週有去看過全案皆為兩房產品
前棟AB戶28坪,後棟CD戶25坪
自己覺得AB戶是最好的房型,
兩房兩衛又備有小中島的設計,
可惜目前僅剩高樓層,每坪單價竟然要29萬以上,想要的中低樓層都賣完了(殘念),雖然全案僅44戶,電梯只有一台,
產品能夠如此規劃已經很不錯了,市場上一定沒有100分的案子,但這個案子我覺的有80分的價值,單純個人想法分享~
sssex9802pp2

現在大慶那邊都破40了 還有6字頭的 這房價漲的超狂!

2026-01-25 20:56
太誇張了八,高樓層竟然要29萬,,,,,,,,
chrisyhsu wrote:
上週有去看過全案皆為...(恕刪)


我這邊因故 有中樓層要釋出

有需要的人在私訊我,謝謝
ooekek99oo wrote:
太誇張了八,高樓層竟...(恕刪)


沒那麼貴啦…
這格局?可否介紹一下,看不太懂
  • 20
內文搜尋
X
評分
評分
複製連結
請輸入您要前往的頁數(1 ~ 20)
Mobile01提醒您
您目前瀏覽的是行動版網頁
是否切換到電腦版網頁呢?