• 14

昌益東光段3期登場-挪威麗園

adata1570 wrote:
不知道目前開賣時間?...(恕刪)

買過昌益的都會知道,如果不搶先,等到電話通知你去挑的時候⋯⋯⋯⋯⋯
這次的坪效感覺比較好,值得去談談看呦!
leopard3cat wrote:
這次的坪效感覺比較好...(恕刪)


覺得坪效跟前面幾期看起來差不多耶

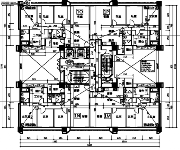
下面是從公聽會撈出來的圖面 大家參考看看


哇嗚嗚嗚 wrote:
覺得坪效跟前面幾期看...(恕刪)

這次沒有陽台外推了
那只是房間更小了吧 外加六拼
s0923539218 wrote:

這次沒有陽台外推了
ck22303 wrote:
那只是房間更小了吧 ...(恕刪)

一二期是 工作間+陽台外推後約等於一間兩坪多的房間

三期是直接給你兩坪多的房間 ,沒有工作間+陽台外推


李市民 wrote:
買過昌益的都會知道,...(恕刪)


二期買方似乎有些認為白繳了20萬, 因為公開銷售的時候還有一堆好的可以選,
這也是為什麼昌益在三期要特別澄清都是建商自己賣, 並未委託任何仲介,
當然每個人心中的好房都不同, 想買好方位/樓層要自己評估一下了,
多做功課,也可以優先入場,挑到好位置,不用多花仲介費
s0923539218 wrote:
30萬 有人要進場了...(恕刪)


感覺三期向南的四房棟別應該也是賣很貴,應該也會1500以上。

便宜一點的話,東西向的三房,扣除左側靠近天橋的部分不考慮。

感覺右側三房不錯,再扣除客廳不要面西這條件,只剩最右側的面東三房應該是最好的了。

不過也靠近馬路,應該會有車流聲音,只能說房子沒有盡善盡美的。
  • 14
內文搜尋
X
評分
評分
複製連結
請輸入您要前往的頁數(1 ~ 14)
Mobile01提醒您
您目前瀏覽的是行動版網頁
是否切換到電腦版網頁呢?