
我和表妹感情很好,常常會一起出去玩,到高雄的話都會住他們家。這次看到他們家大變樣,實在忍不住我的分享慾,經過阿姨他們同意後,開箱上菜啦!!
◆關於這棟房子◆
屋型:透天中古屋
地點:高雄市楠梓區
主要居住者:爸爸、媽媽、女兒
施作坪數:40坪
總工程造價:90萬(含工程管理費)
設計師:放在商家資訊,回文就可以看到囉
◆重新裝潢原因◆
房子是透天中古屋,買的時候已經有前屋主的裝修,當時覺得裝修得還不錯,加上購屋後沒有多餘的裝潢費,所以一直延用到現在。但經過幾年,覺得舊裝修已經不符合我們的喜好和使用需求,當然還是有我們很喜歡的部分,所以希望設計師幫我們重新規劃。
◆設計需求◆
1、把車庫的隔間欄杆封起來。
2、前屋主在一樓客廳有蓋小隔間,應該原本是孝親房,但我們用不到變成堆雜物的閒置空間,而且會擋住採光,希望拆除。
3、玄關沒有遮擋,打開大門就會一眼望穿,希望能做個屏風之類的物件,增加隱私感。(後來我們買到喜歡的現成屏風櫃,所以請設計師改幫我們設計玄關的電箱牆面。)
4、我們喜歡一樓廁所的假櫃體設計,希望可以保留並換一種比較輕快的色系,現在的深木色太厚重也讓房子看起來很陳舊。
5、爸媽住二樓臥室,媽媽淺眠,時常覺得隔壁聲音很大睡不好,所以希望可以加強隔音。
6、希望收納空間非常非常足夠,我們雜物很多,但不希望有壓迫感。
◆裝潢施工項目◆
細項統整在文章最後
拆除工程/水電工程/木作/輕鋼架工程/系統櫃工程/油漆工程/軟片工程/清潔工程
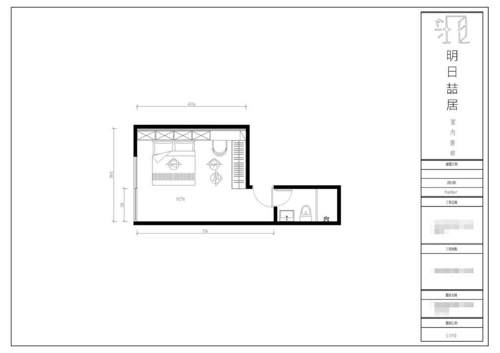
◆平面圖◆


◆3D圖◆








✨懶人版:直接看前後對比✨
裝修主要著重在客廳、二三樓主臥室,二樓和三樓格局類似。




✨細節版:含施工、裝潢細節✨
◆原屋況◆
▼正在清空房子,雜物整個大、爆、炸,只能淪落到在客廳用一張小小的高腳椅放筆電工作。




▼別以為客廳看到的就是極限,房間櫃子裡還有更多東西,陸陸續續搬空中。



◆裝潢施工中◆
因為我們家白天都有工作,沒辦法花太多時間監工,好在設計師小蔡抓得很緊,進行到哪一部分工程都會拍照紀錄或跟我們說明進度,讓我們可以安心上班,假日有空再去看一下就可以了。
▼舊裝修拆除中,客廳小隔間拆掉後空間變得好大,光線也進來了,好棒😍


▼冷氣包管。

▼封板。


▼爸媽二樓臥室,床頭塞隔音用的岩棉。前面有提到媽媽淺眠,會被隔壁的聲音吵到,所以特別加強臥室的隔音。


▼車庫隔間封板。

▼油漆。

▼木作工程。


▼安裝系統櫃。


◆完工入住◆
▼明明就是同一棟房子、同一個空間,怎麼前後差別這麼大呢!裝潢設計根本就是魔法💫 💫天花板的裝飾條被拆除,更加現代感的俐落線條,讓我覺得空間不只大了一倍!

▼玄關牆面,可以遮蔽電箱,中間的開放格可以放物品。



▼客廳小隔間拆掉後,外面陽光透進來,房子變得明亮,我們住起來心情也很好。玄關的穿鞋椅,打開蓋子就是滿滿的收納空間。

▼這是車庫階梯前的收納櫃,同樣也有充足的收納空間。

▼我們買的屏風櫃~可以增加隱私,不會像以前一樣,大門一打開就會看到我們懶洋洋癱坐在沙發😂


▼家裡的貓咪小霸王,看來牠也很滿意新裝潢,造型電視牆底部是牠的專屬領域。

▼系統櫃的顏色是我們和設計師一起挑的,因為以前舊裝潢的核桃木色看起來很壓抑,所以這次重新裝潢希望是比較清爽的色系,而設計師小蔡推薦我們可以淺木色配淺灰色,看起來很爽朗。


▼雜物也可以一格一格區分,非常方便。

▼美化後的廁所和小小儲物空間,誰能想到這面假櫃子內有乾坤呢~



▼臥室格局都差不多,當初爸媽想買這棟房子,除了地點離上班公司距離很近,也是因為每個房間的採光都非常好,住起來很舒適。



▼現在從床頭櫃、衣櫃到收納物品櫃,經過設計師的一致規劃,無印風的色系讓房間看起來明亮寬敞,也不會有壓迫感,生活物品也終於能好好收進櫃子裡!

▼系統櫃材質我們也覺得很不錯,是E1等級的台貼的美耐皿;五金是川湖台製五金。

以上,中古透天重新裝潢分享給大家!
基本上房子住起來還是很舒適的,格局也很棒,只是舊裝修不再適合我們,這次很感謝設計師小蔡幫我們重新改造,讓整棟房子變得更加明亮現代,適量的收納空間讓我們更好整理住家,也讓我們更喜歡招待朋友來家裡!
◆裝潢施工細項◆
▶拆除工程
一樓客廳原裝修拆除/二樓主臥部分拆除/三樓主臥原裝修拆除
▶水電工程
一樓客廳.二樓部分.三樓主臥開關插座移位/一至三樓弱電.線材重拉更新/一至三樓無溶絲保險開關更新
▶木作/輕鋼架工程
車庫單面隔間封板/一樓客廳冷氣包管/一樓客廳櫃體上部封板/一樓客廳電視牆及格柵板造型/一樓客廳電視櫃平台造型/一樓客廳浴室造型牆面及隱藏門/一樓客廳玄關造型牆面/二樓主臥床頭封牆內塞岩綿/三樓主臥櫃體上部包板/三樓主臥冷氣包管
▶系統櫃工程
車庫階梯上掀收納櫃/一樓玄關開放櫃/一樓客廳收納臥榻/一樓客廳電視旁收納櫃體/三樓主臥床頭收納櫃/三樓主臥衣櫃/三樓主臥書桌
▶油漆工程
車庫封板油漆/一樓客廳全室油漆/二樓主臥封板油漆/三樓主臥全室油漆/部分陽台室外漆
▶軟片工程
一樓廚房及客廳原木作隔屏軟片改色
▶清潔工程
一樓三樓細部清潔/其餘局部動線清潔




























































































