【三代齊聚銀髮宅,讓透天別墅空間翻倍大】
完整作品欣賞:漢慶街老屋翻新從人間美術、美術之星,再到白玉岸7樓及8樓,這幾件出眾的作品,來自於同一個客戶;幾度的合作,都是由藝瓦一手設計、催生,再把屋主送進專屬、舒適的家。
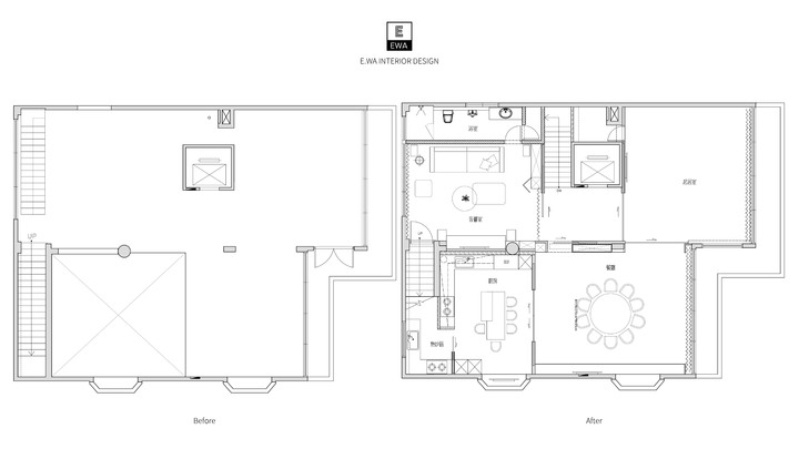
漢慶街老屋相較於前幾個作品,意義又不相同。這次老屋翻新改造,要為這棟約4層樓高,建物面積80~90坪左右且是父母親居住已久的老屋,進行一、二樓的翻修。需考量更多的是如何將透天厝機能和長輩生活結合,加強便利性;並且能夠在重要節日家人齊聚之時,讓每位家人都倍感溫馨、舒適。



【空間設計量身打造 老屋翻修符合銀髮宅貼心需求】
藝瓦室內設計李淑惠總監在與屋主深談後,將以一、二樓最重要的生活空間,改善關鍵問題:1.老屋空間高低不平,長輩生活不便。
2.廚房小、動線不順,設計不佳油煙也無法順利排出。
3.重點節日大家族家人齊聚,希望打造合宜的聚會場所。
4.屋主期待擁有自己的專屬收藏音響視廳室
除了滿足屋主委託的基本需求,藝瓦高雄室內設計也為老屋進行了全面性的翻新健檢,一起來看看老屋怎麼變身新宅的清單吧!

由於屋主相當重視迎賓門面,所以從玄關設計開始,將玄關重新規劃出大空間,打造出大戶人家的氣勢感。同時為了顧及長輩出入安全,地板採用了止滑的拋光石英磚。在空間與空間的連結中,利用了線條點綴造型,帶出整體高度及寬度有其一致性。
玄關與客廳設計區隔處也以鐵件與玻璃材質做了拉門設計,不僅讓空間運用上彈性更寬廣,也節能冷氣不外漏浪費。
相關文章:客廳如何配色?收納只能配置收納櫃嗎?有沒有其他方法

【樓梯設計變更 符合銀髮宅的便利趨勢】
原本梯的設計在建築物的後方,故比較狹小幽暗,後來考量改裝需求,改到電梯邊和梯在一起,讓整體動線更流暢。設計簡單延續房子尊榮的灰色調,以安全考量為主,做出簡約大氣的感受。

【重整衛浴設計與廁所 簡單明亮也符合大家庭需求】
原廁所位置小也不合宜,故位置更動,另外切割外牆搭配大窗讓空氣流動性更佳。也由於家庭人口多,在公共衛浴中空間需要再加大,並將男女的使用設備貼心分開規劃。
整體以明亮、乾淨、方便使用為主軸。

浴室設計 Before & After
【廚房設計增建 餐廳與中島設計重新愛上料理】
原本狹小陰暗的廚房,也隨之移到客廳填平的部份新做增建。增建後不僅變得寬敞,空間上還能規劃熱炒區、半開放式輕食區,廚房中島設計。
良好的動線規劃,即使讓家人齊聚也沒有擁擠的感覺。
更別忘了還有可以容納家庭70~80位成員的餐廳設計。
現在,不僅讓料理有好的品質可以讓家人享受溫馨互動,再多人一起享受美味時光也沒問題。


相關作品:老屋翻新【改造細節篇】- 20年藝術大街老屋變成現代新風格
【起居室設計 滿足家庭成員喜好的空間設計】
不管是年輕孩子還是長輩,在這裡都有適合自己活動的空間。除了家人們彼此交流聯繫情感的客廳設計,還有獨立的起居室設計,讓大人、小孩可以在自己的專屬空間裡放鬆。
在每個空間設計了拉門,讓各空間彼此開放卻又隱密,也可以透過拉門節約冷氣,自在生活。


說到喜好,更不能忘記屋主的夢想的「視廳室」。
早期的空間較凌亂無章,屋主沒辦法將寶貝收藏一一展示。現在不一樣,在視廳室裡,可以安心的陳列音響,並擁有獨立空間,不僅可以與好友聚會相邀共賞,也能安靜自在聆聽絕佳音質不被打擾。

【老屋翻新交給專業室內設計公司】
一般人聽到老屋翻新,總是擔心工程浩大又傷荷包。建議您不妨可以交由專業高雄室內設計公司為您做「老屋翻新全健檢」。
該保留?該翻新?為您做全盤的規劃,讓老屋變新屋,不管是轉售或是自住,皆可依需求為您健檢老屋體質,量身規劃。
老屋翻新自住&轉售細節文章:
老屋翻新【轉售篇】- 舊屋自住翻新、翻修一定要知道的事
老屋翻新【自住篇】- 老屋自住翻修一定要知道的事
相關影片:




























































































