
平面配置我都設定好了,再跟設計師做細部設定討論,雖然是套房,我什麼都想要,一房二廳一廚一衛。


原來套房什麼都沒有只有一個小水槽跟小料理台,連爐子都沒有也沒有排油煙機,跟本無法開伙,要做就一次到位。

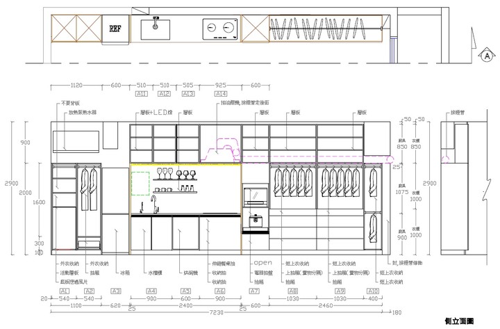
那就把系統櫃做好做滿,直接把樑包起來,首先設定下櫃總高度200公分含踢腳板10公分,深60公分,上櫃高85公分深30公分,總樓高290,差5公分是為了怕舊建物地不平沒有水平,這樣縫大一點如果有水平不平才不會看起來很明顯,樑距離地面230公分,扣掉下櫃200公分還有30公分,樑深也是30公分,這一個空間剛好可以走6英吋排油煙管。因為以前沒有廚房,所以要洗一個洞走油煙管。
入門的二個櫃子,第一櫃內有配水管,當雜物櫃主要放4張折疊椅,這是餐椅,當有客人來訪時可以拿出來用,平常可以收起來,第二櫃是臨時衣櫃,外出服還沒要洗的衣服可以掛這裡,還有做一個抽屜高度剛好可以當穿鞋椅,上方要放熱泵熱水器所以不做上櫃,再來是放冰箱,考慮到散熱所以上方也空出來,旁邊上方是熱泵熱水器,一個要散熱一個要吸熱,剛好是最佳拍檔。


再過來會有一個電箱,這二櫃加冰箱寬度不可以檔到電箱,再過來是廚房,水槽90,烘碗機60,IH爐90,電器櫃60,一般小家庭應該沒辦法有這麼完整的廚房空間,因為水槽上方有電箱所以水槽櫃體總寛90,水槽只做60盡量離開電箱下方。在套房如果要擺一張餐桌客廳應該就沒地方擺沙發,所以大部份人應該都是用客廳的茶几當餐桌,可是這樣吃飯並不舒服,有客人來也不方便。

廚房牆面的修飾,設計師給的建議是是用60*120的大板磁磚,以前都是用烤漆玻璃,想說改個風格就用看看吧,牆面240*110剛好用4片,第一片有電箱要切成三片,電箱上這一片需要可以開合當門,設計師用不鏽鋼板焊上絞鏈當底板再貼上磁磚,這樣才能保證以後不會出問題,





而且我女兒說客廳電視前方空間他要玩SWITCH,連茶几都不要放,為了這個,平常不要出現來佔用生活空間,要吃飯時再變出一個餐廳出來,這時伸縮餐桌跟折疊椅就出現了。






當然飲水問題也不能忘了,這時廚下型開飲機就出現了,我選的是一級能效的國際牌廚下型開飲機。


最後剩下的的空間就是二個各一米的衣櫃,最後大樑下還有約40公分空間,做一個可以吊大衣的衣櫃,把空間做好做滿一點都不浪費,空間不浪費的結果就是浪費錢,錢再賺就有,空間浪費了就浪費了,以後要改更浪費錢,而且可能會原本的設定不一致,這一次五金選的BLUM的,有用過其他牌子的,後來都有一些問題。




櫃子裝好叫女兒來看,問我為什麼每個抽屜都有一個洞,阿!當初設計圖都有給你們看過,回我,看圖誰知道會長這樣,以後灰塵會跑進去。因為我不喜歡五金凸出來,才會設計凹槽當把手,竟然被打槍,只好找設計師想辦法,最後想到的辦法是用不鏽鋼折一個把手,嵌在凹槽上,這樣洞補起來了也不會凸出櫃體還有把手功能,可以說是一石三鳥,到此廚櫃終於告一段落。


因為櫃子做好做滿,要拿取上櫃的東西需要梯子,所以買了一把樓梯椅,平常當椅子用,需要時馬上變身成樓梯使用。




























































































