冂字型的廚房報價合理嗎?

冂字型的廚房報價合理嗎?

冂字型的廚房報價合理嗎?

冂字型的廚房報價合理嗎?


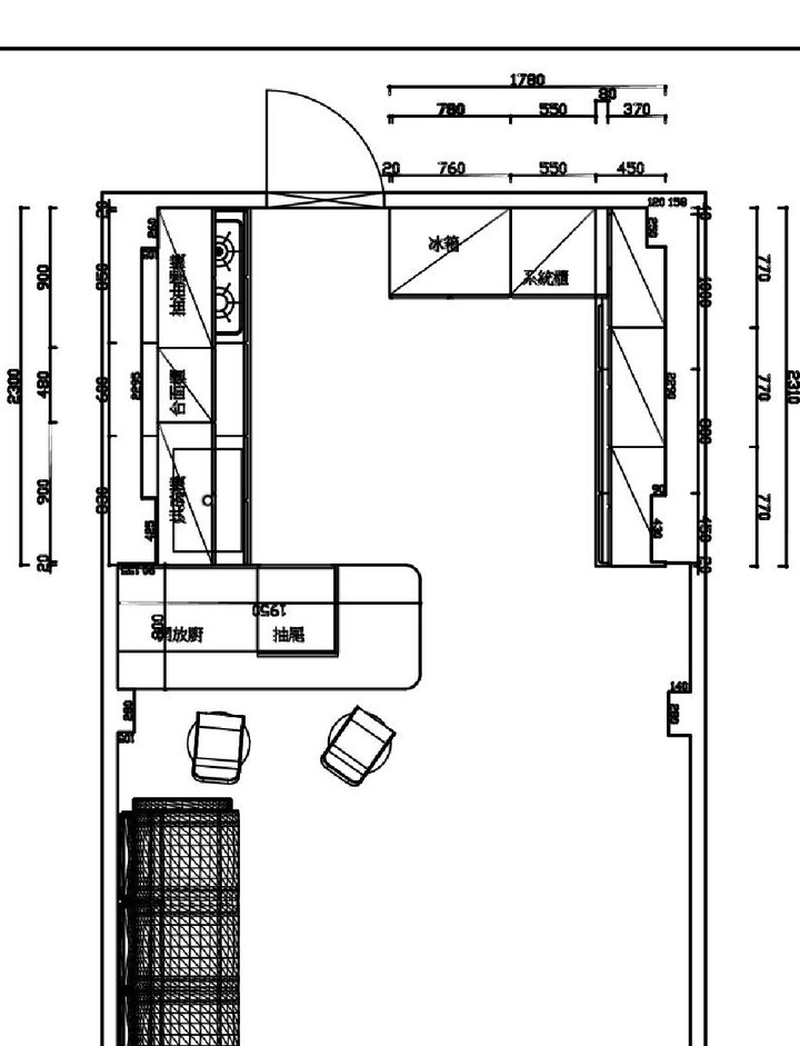
想問問看大家這份门字型廚房

報價算不算合理?

或是哪邊還可以刪減的?

需要包好多柱子,也只能做系統包掉

檯面石英石(沒報/廠牌),換人造石折一萬五

頂櫃是門加框合板蓋掉

流理台桶身不鏽鋼,剩餘和右側備料台

大多是v313板材

洗碗機跟Ih爐是自備,抽油煙機想換近吸式

的應該沒意外還要多一萬


或是有台中推薦可以估價的廠商嗎?

謝謝大家

麻煩大家幫我解惑了!謝謝
2022-11-05 23:03 發佈
可以洽詢,
歐亞廚具,
此店家安裝施工完畢,
均會在臉書分享。

因此,這種店家,
會很注重網路評語,
絕對不會是地雷。

當然,
這種店家也不少,
你可往這方面搜尋。
我是先抓一字型的來看價格

L算兩個一字好了,價格算起來10多萬

雖然是石英石的檯面,不知道市價是如何?

而且都不含五金水槽什麼的
美式咖啡9999

你再找兩家,開一樣的規格給他們估就知道了... 我是覺得那個吧檯椅放腳的地方,做開放櫃,很瞎.....

2022-11-07 14:12
raxtmax
raxtmax 樓主

美式咖啡9999 我是打算把他做成玻璃櫃的樣子,因為也比較裡面,後面空間也有限這樣

2022-11-07 17:50
內文搜尋
X
評分
評分
複製連結
Mobile01提醒您
您目前瀏覽的是行動版網頁
是否切換到電腦版網頁呢?