IF得獎連結
一、前言
本案是老屋翻新的案例,原先的屋況風格與格局都是比較傳統的設計,加上考量屋主190公分的身高,重新針對格局、天花板高度、公領域採光通風、風水等細節規劃,打造出明亮、通風、舒適且屋如其名的「光合窗明」。
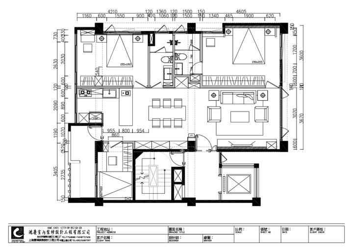
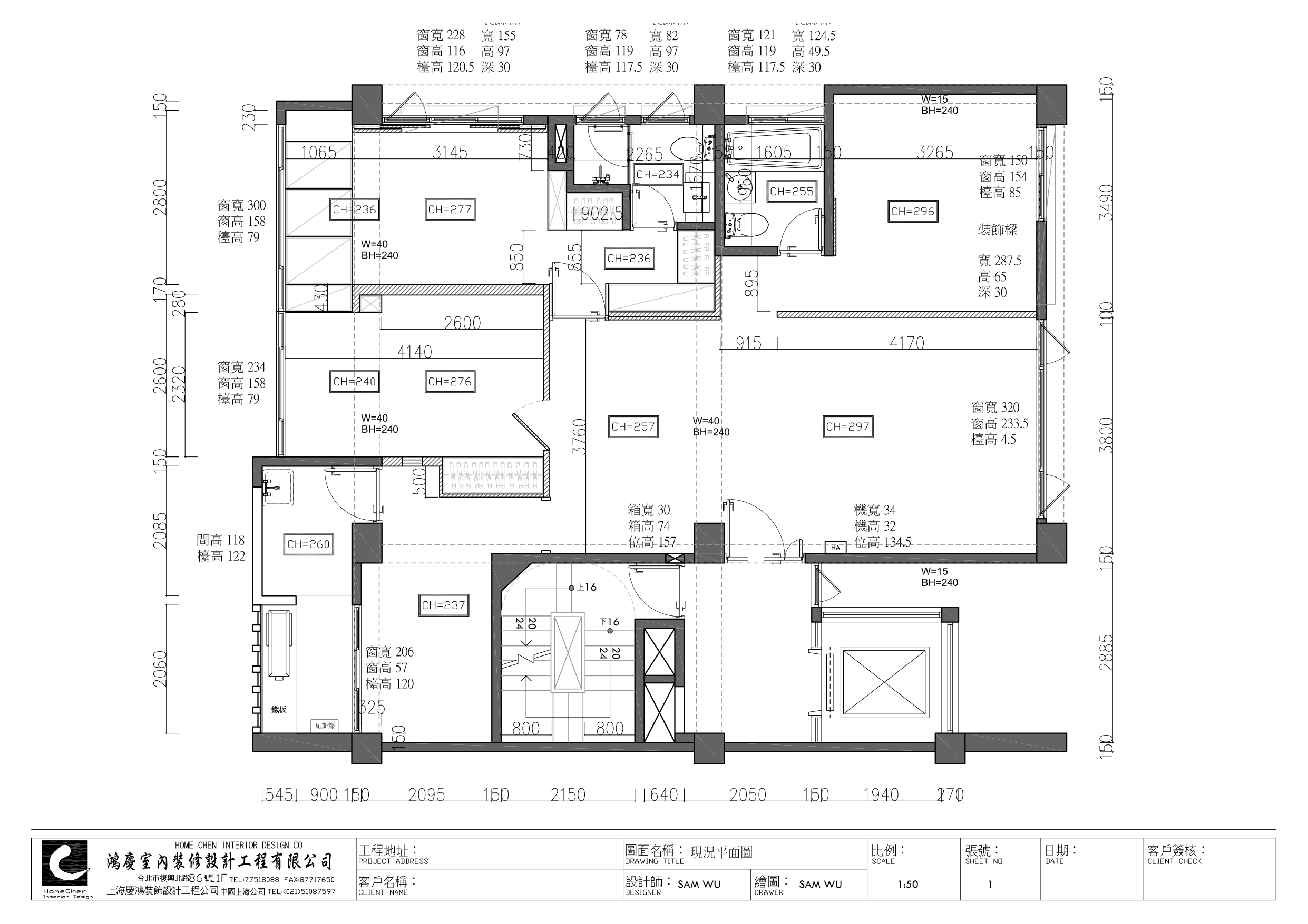
二、格局
坪數:33坪建材:木紋磚,實木牆,人造石,特殊漆,波浪造型馬賽克
格局:3房2廳
三、3D圖
在設計規劃之初,我們都會跟業主緊密溝通討論之外,也會提供3D圖給業主,透過3D圖能更直覺預見完工後的樣貌,若有什麼問題跟想法也能盡早提出來。

四、裝修前
![]() |
![]() |
![]() |
![]() |
![]() |
![]() |
![]() |
![]() |
![]() |
![]() |
![]() |
![]() |
五、3D圖


















六、施工過程照
![]() |
![]() |
![]() |
![]() |
![]() |
![]() |
![]() |
![]() |

![]() |
![]() |
![]() |
![]() |
![]() |
![]() |
七、完工照
1.客廳客廳在沙發背牆做了精緻收邊的實木條設計,天然木皮壁板直連天花板帶來挑高的效果,搭配木紋地磚溫潤舒適。懸空的電視櫃平衡電視偏移的視覺誤差,搭配藝術漆電視牆讓整個空間跳脫制式的設計。






2.餐廳與開放式廚房
餐廳空間透過長虹玻璃與橡木牆與客廳劃分,再擺設中島化解開門見火的風水疑慮,同時也區分了廚房區域並提升使用上的便利性。原本廚房與客臥的位置相反,對調後客餐廳與廚房串成一條線,公領域前後採光與空氣也得以流通。








3.主臥室
主臥室延伸木色的溫潤清爽,設置香檳金色床頭展現大器沉穩的氛圍,整面頂天衣櫃滿足了收納需求。









4.次臥
次臥床頭設計一深一淺木紋呈現活潑的氛圍,透過窗邊拉門解決了床頭開窗的風水疑慮,將原本畸零空間規劃成收納抽屜與展示櫃,格局更為方正且活用。







5.兒童房
將原本的廚房空間與次臥對調而成為這間兒童房,將床與衣櫃、書桌連為一體,小空間得到完整的運用且五臟俱全。圓弧形狀繃布床頭、書桌面的磁吸牆,都讓小而巧的兒童房更為精緻。


6.浴室
主浴與客浴皆為有採光的三件式衛浴,人造石衛浴設備搭配石紋磁磚與波浪形馬賽克,打造出清爽明亮有質感的衛浴空間。





本案為難得一見的每個臥式包含浴室都有採光美宅,本身條件的優勢搭配跳脫傳統的設計,讓原本舊式線板設計、光線無法前後穿透的格局動線得以改善,煥然一新形塑出舒適愜意的居家空間。
以下也提供我們先前的文章連結給大家參考:
【幫開箱】全室天花板圓弧設計超優雅!「湖光漣漪」老屋翻新案例分享
https://www.mobile01.com/topicdetail.php?f=360&t=6671237
【幫開箱】大器石材打造奢華質感!「秘密花園」老屋翻新案例分享
https://www.mobile01.com/topicdetail.php?f=360&t=6602125
【幫開箱】日式時尚宅,唯美挑高夾層設計
https://www.mobile01.com/topicdetail.php?f=360&t=6454397
【幫開箱】三戶相通的「輕美式+現代宅」🤎木質清新溫暖
https://www.mobile01.com/topicdetail.php?f=360&t=6449971
【幫開箱】日式簡約宅,踏入會呼吸的清新小宅
https://www.mobile01.com/topicdetail.php?f=360&t=6458984
歡迎至我們官網看更多作品:
https://homechen.com/work/
























































































































