• 3

[請益]請益

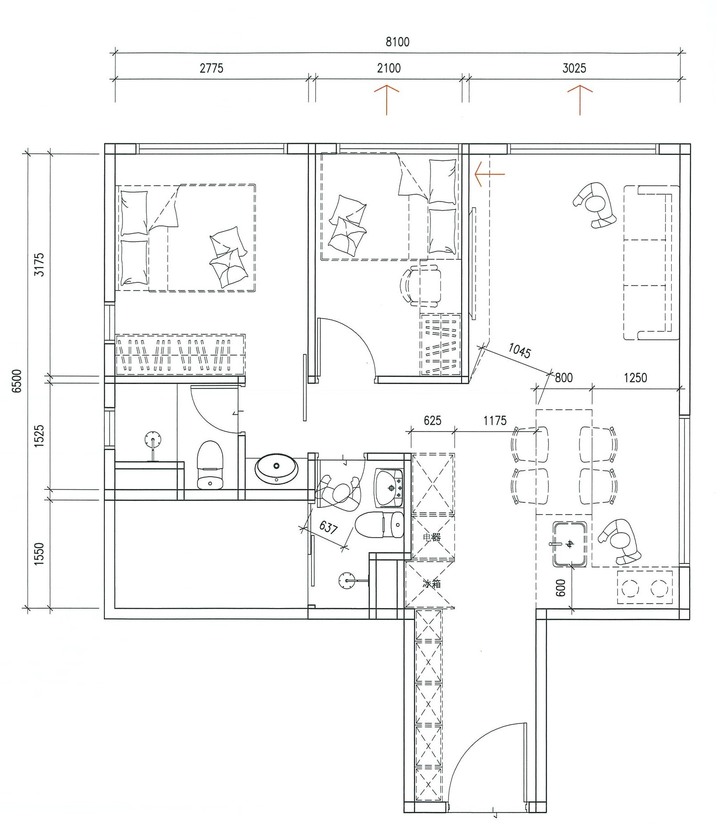
格局如下
[請益]請益

因為客衛的形狀覺得有點畸零,
且打算從玄關做整面的櫃子(中間有冰箱)
所以目前把客衛馬桶臉盆對調,讓牆面平
[請益]請益
但是廁所門還是與房門相對
想請教各位大神還有什麼可以改變的嗎?
以及開放式廚房怎麼處理?用玻璃拉門?
這種小廚房怎麼使用?

麻煩大家指教 謝謝
2020-06-04 22:22 發佈
客變嗎

hi,有點建議。
如果廚房可以改位置~
建議廚房與客廳對調,動線比較好。
簡單建議.請參考附圖.
方案1.



方案2.
白漆 wrote:
hi,有點建議。如果(恕刪)


感謝白大,從沒想過這樣配置,這樣也是一個方法
ganwater wrote:
簡單建議.請參考附圖(恕刪)


謝謝g大,還特地畫圖,畫出來空間感真的比較有,感激不盡
後陽台從客衛進出?

我比較建議把廚房跟客衛對調.....
一点小意见


jasonsu887 wrote:
因為客衛的形狀覺得有點畸零,
且打算從玄關做整面的櫃子(中間有冰箱)
所以目前把客衛馬桶臉盆對調,讓牆面平


你自己浴室的改法 風險很高 建議你衛浴部分維持原狀比較好
1.門會不會與面盆衝突 或是要開關門時動線不佳
2.坐在馬桶使用時,腳會不會與面對的門窗/牆面覺得有壓迫
3.建商的須知與客變規定有沒有同意可以變更衛浴,如果沒有同意
不一定會同意你的客變 因為會牽涉到防水保固問題
jasonsu887 wrote:
室內含陽台約18.8(恕刪)


一般來說

廚房跟浴室是無法改位置的(幾乎)

如果是我會考慮把客房跟客廳的位置交換(隔間右移)
  • 3
內文搜尋
X
評分
評分
複製連結
Mobile01提醒您
您目前瀏覽的是行動版網頁
是否切換到電腦版網頁呢?