【請益】客變格局配置

第一次買房子,
室內空間約15坪,只有兩人居住,
希望有主臥空間能大一點、能夠有閱讀工作空間
建設公司說除了廁所位置不能動,其他隔間空間都可以調整
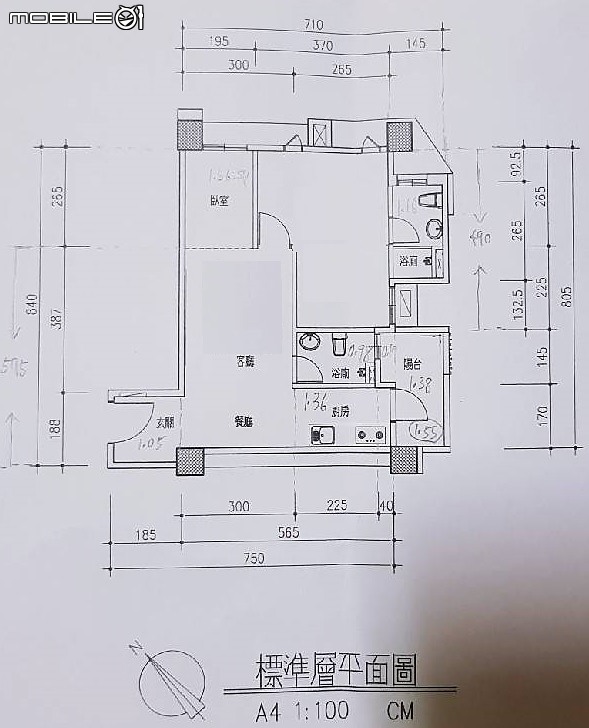
下圖是原始圖
【請益】客變格局配置

目前想到想這2種客變方式,不知道在風水上或實用度上哪個比較好?或者有其他比較好的調整方式?謝謝~
【請益】客變格局配置
【請益】客變格局配置
2020-05-31 18:11 發佈
開門見灶又穿堂,三種都不佳

既然只有二個人住為何要二套衛浴浪費空間。
match128 wrote:
開門見灶又穿堂,三種(恕刪)



兩間衛浴很重要耶~~
尤其對腸胃不好的人來說~
我就是XDDD


隨便亂想了一個方式,不知道是否可行XD
深藍色代表沙發,淺藍色代表茶几,綠色象徵電視牆。

我是覺得把工作閱讀室用成開放式的,
可以幫客廳引入採光避免變成暗廳,
而且主臥跟次臥也都變大了,
但也是要看看是否符合樓主需求啦!

另外這種改法,可能客廳的家具擺放方式會比較受限,
實際上是否可行,還要請專業人士看看囉~
考量客廳採光及空間方正.依照樓主所規劃第一案略加調整:
1.面寬545公分(不含主臥室衛浴).調整牆面使主臥與客廳的面寬一樣.這樣主臥較寬敞.動線較好安排.公共衛浴的面寬略為增加.可以調整成整套衛浴.廚房面寬也略增.
2.增加玄關隔間.可使用拉簾.避免一進門正對廚房門.
3.主臥室衛浴門建議調整位置.避免對床.
其他概如附圖.僅供參考.


請問這是什麼程式?需要付費用嗎?謝謝🙏

ganwater wrote:
考量客廳採光及空間方...(恕刪)
Blue73 wrote:
第一次買房子,室內空(恕刪)


你自己有花時間發想很不錯
但是你的方案有可能讓空間畸零區塊變多或是動線不佳

我個人還是建議你把資料帶著找專業人士諮詢
對你比較有幫助


ganwater wrote:
考量客廳採光及空間方正

你規劃的空間 方正 動線也很好
但是你動到了衛浴牆面 以及門等
這樣客變可能不會通過審查
或是得等交屋後再二工
一点小建议,放了一些尺寸让你可以大概知道放了家具的情况,但觉得你还是需要找专业的谈谈会比较好
keto20130109 wrote:
請問這是什麼程式?

免費軟體:sweethome3d
下載網址:http://www.sweethome3d.com/zh-tw/
如果建商說除了浴室【位置】不能改,其他都可以。

那我建議有獨立的書房~
內文搜尋
X
評分
評分
複製連結
Mobile01提醒您
您目前瀏覽的是行動版網頁
是否切換到電腦版網頁呢?