• 2

小兩房,想請教版友們全熱交換器及冷氣的配置

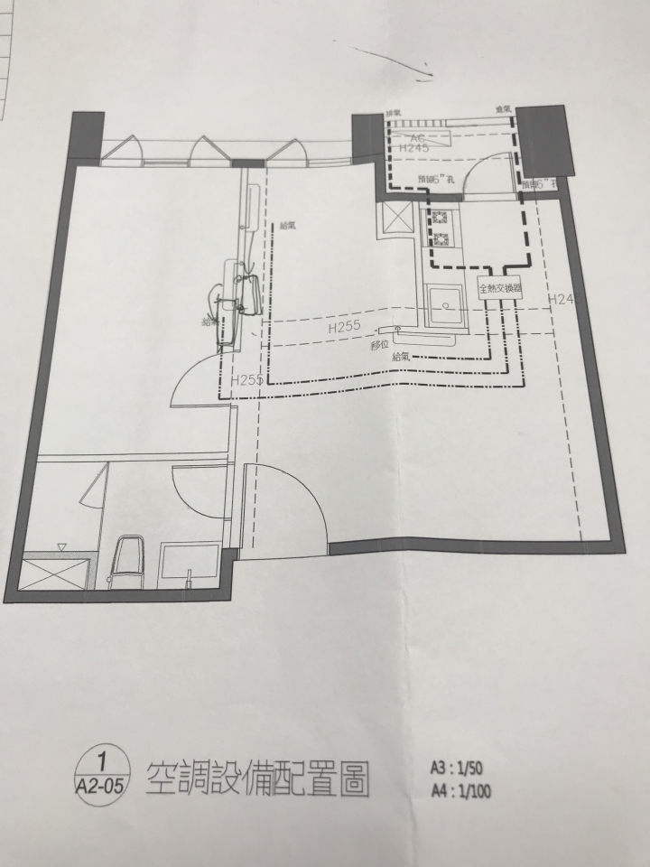
小妹入手一間小兩房預售屋,室內坪數約14坪,單面採光,附上設計師規劃的配置圖,想請教版友們全熱交換器及冷氣的配置。目前癥結點是:
1.單面採光單面通風,擔心室內空氣不夠流通,設計師建議可裝全熱交換器,但進氣口與排氣口都在陽台,陽台還要裝熱水器、洗衣機等。目前牆面已留洗洞,不知這樣施作後效果如何?如果只裝抽風扇ok嗎?有需要裝到全熱交換器嗎?

2.冷氣目前設計師建議裝分離式一對三,我想請教版友有沒有不用這麼多台,但冷氣可分區域開的做法?例如:晚上只開客房跟主臥,白天只開客餐廳?但主機不要買到三台。

謝謝大家









小兩房,想請教版友們全熱交換器及冷氣的配置

小兩房,想請教版友們全熱交換器及冷氣的配置

小兩房,想請教版友們全熱交換器及冷氣的配置

小兩房,想請教版友們全熱交換器及冷氣的配置
2018-12-07 11:21 發佈
joysmama wrote:
小妹入手一間小兩房預...(恕刪)


妳的坪數跟我很類似,也是單面採光,冷氣我也是用一對三,但是是無奈,因為建商只有留一台室外機的位置可以放,而且全部都統一邀大樓外觀整潔一致吧!!如果沒有強制規定或是有足夠的空間,可以考慮一對一x3或是一對二+一對一,避免有一台室外機掛點通通不能吹的窘境。

至於全熱交換器當初也有考慮,不過因為預算問題後來就沒有做了,所以這部分無法給妳建議。
冷氣一對三的話主機只有一台吧?白天只開客餐廳就只有一台室內機會動,就是您要的分區域開;好處是省室外空間,壞處是萬一唯一一台主機故障,三台室內機都開不了。
1.有看到給氣口,但沒看到吸氣口,不曉得怎麼吸廢氣。通常有分多進一出或多進多出的選項。

2.全熱只有吸進來空氣,但沒有過濾功能,建議在陽台多一個pm2.5的過濾箱。

3.全熱線路的建置比本機還貴,如果裝潢不一起裝好,事後要再裝似乎就沒辦法了!

4.裝不裝都各有利弊,但我裝了之後,都沒再開窗的。給你參考一下。

joysmama wrote:
小妹入手一間小兩房...(恕刪)


抽風扇只能把髒空氣往外排沒法引淨乾淨空氣,全熱交換機主要是排出髒空氣吸入新鮮空氣(靠吸入的前端淨化箱),也有一種是雙向送風機一般都是叫新風 但兩個都是需要管道只是個熱交換(也可以單純送風) 一個單純送風,一般有兩個費用 主機費用 跟管路費用.

如果要裝熱交機或新風 你要考慮出風口跟入風口不要太近不然髒空氣又會被吸回去效果會打折,室內出風入風要對角線,房間床頭附近最好不要有出入風口不然怕晚上影響睡眠
一浮雲
joysmama wrote:
小妹入手一間小兩房預...(恕刪)


我目前的室內坪數也差不多這個大小,狀況與妳很像,陽台會有冷氣室外機,熱水器,還要有全熱交換器,當初考量要洗太多孔,所以最後裝P牌,這不是天埋型的,是會看到白色面板的...

室外的部份是用這個配件少洗一個孔...

我安裝的位置剛好是在房子的中央,預計房門都打開的話也可以達到效果,不過這台無法像其他機種可以連結冷氣開關買個控制器連結開關,他是獨立開關的哦...

目前還在裝潢沒辦法分享使用心得,不過全熱交換器一直是我很想裝的東西,因為我怕悶,高雄空氣又不太能開窗,所以直接考慮全熱交換器了...希望之後使用可以達到我要的效果...

冷氣我們是窗型改分離,為了節省空間所以裝一對二埋入式,當然室內機故障一台另一台還能用,但室外機故障,那就都不能吹囉...



以上與你分享,希望有所幫助...

joysmama wrote:
小妹入手一間小兩房...(恕刪)

據小弟了解
妳都不開窗戶透氣 密閉空間
才有全熱交換器的需求...
吃小菜.喝小酒.打小牌.摸小手.騎小車....看看小電................................................視!
我們是準備要裝全熱式,廠商評估工作陽台要裝熱水器,所以不建議那邊裝進氣風管。

joysmama wrote:
小妹入手一間小兩房...(恕刪)


關於全熱交換器
上次有一個人開箱
因為他很在意空氣品質
原本室內不通風變成通風後
空氣品質卻變差了
這點樓主可以參考一下
應該有辦法改善
我的坪數和格局有些相似,原先設定是要裝全熱,後我來選定的設計師覺得不需要,
他覺得小空間或是例如客廳距離開窗的空間沒有經過兩個以上的隔間,不太需要,
所以我後來就沒裝了,除非你窗戶不會常開,那就真的要考慮一下,
另外我未來的鄰居其中也有設計師,他們也覺得不太需要,當然要裝也是可以
畢竟全熱的費用相較起來不會太貴,而且全熱事後加裝很麻煩
  • 2
內文搜尋
X
評分
評分
複製連結
Mobile01提醒您
您目前瀏覽的是行動版網頁
是否切換到電腦版網頁呢?