問透天一樓格局設計

問版上神人設計平面圖
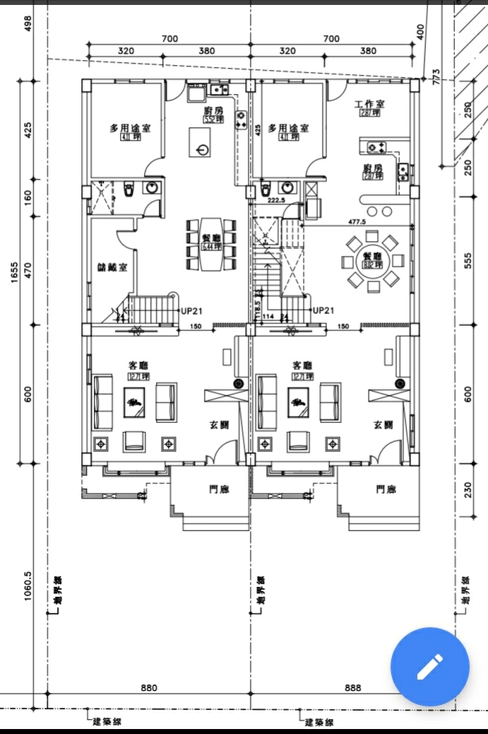
各位對左右兩邊格局設計優缺
右邊因考量1.5m外隔壁會蓋房子(左邊沒有此問題)
故中間樓梯採貼壁式 留天井
右邊後面工作室半屬寵物室
不過問到多數覺得左邊才符合空間利用
右邊這樣很浪費

個人是喜歡採光充足 偏開放式開放式
有沒有什麼意見可以供我們參考?



2017-11-10 15:31 發佈
以現有建築規範,不二工,不自己封死自己狀況下,

前,後,右都可以有大面積開窗,採光通風應該足夠了吧(如果周邊都是高樓狀況特殊,那另說),

面寬,縱深也沒到很特殊的距離,還需要開天井.


工作室,廚房,多用途室,誰大誰小,

多用途室跟工作是哪個需要單獨保留,

這個考量看您自己判斷,

不過如果是我,多用途室當工作室,

廚房我不太會弄得太小,當然人口少也是可以接受,

左邊那張圖,有獨立儲藏室,會比較加分,但我大概不會用隔間牆,或是不會做整面牆.
這基地夠大很漂亮,須要蓋那麼滿?人口數多?
可以參考之前有人開箱"我和設計師的五口之家"⬅標題不知正確否?
謝謝你的回覆~
midnightages wrote:
以現有建築規範,不二...(恕刪)
這篇文看了
似乎太藝術了>"<
但還是謝謝
jlwul wrote:
這基地夠大很漂亮,須...(恕刪)

jlwul wrote:
這基地夠大很漂亮,須要蓋那麼滿?人口數多?

同意,房子不是大就好,
看到幾個問題:
1.廚房配置不良,電器櫃與冰箱離工作區太遠,檯面空間不足。
2.廁所沒對外窗,沒自然採光,未來管線維修困難。
3.大部分窗戶都緊貼外牆,未來勢必得搭雨遮,破壞美觀。

如果是我會選擇蓋兩棟小一點的獨棟透天,
依照日照條件,兩棟前後可略為錯開。
NO.NO 不是看它的裝潢
板主之前有PO平面圖
應該是你想要的
謝謝
廚房的配置不是這版圖
會往前延伸跟餐廳成一區

我也同意房子夠住就好
不太喜歡深間
直直長條 廁所樓梯加上共壁都限制了設計
當然是包括長輩等意見……
也只能去思考要怎麼做空間的連結性較好


jackhung_web wrote:
同意,房子不是大就好...(恕刪)
內文搜尋
X
評分
評分
複製連結
Mobile01提醒您
您目前瀏覽的是行動版網頁
是否切換到電腦版網頁呢?