整棟為5樓的15年舊公寓
施工的樓層位在2樓
樓層面積約15坪
小弟對水電方面比較沒概念
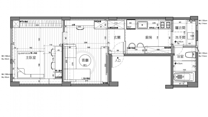
以下附上水電配置圖
想請教專業的大大們
這樣的估價合理嗎
在此先感謝各位大大撥空解答



chashun175 wrote:
小弟近期要整修舊屋
整棟為5樓的15年舊公寓
施工的樓層位在2樓
樓層面積約15坪
小弟對水電方面比較沒概念
以下附上水電配置圖
想請教專業的大大們
這樣的估價合理嗎
在此先感謝各位大大撥空解答

煙雲煙 wrote:
白鐵管?一般白鐵管是指鍍鋅鐵管(恕刪)