![[請問] 7X18米 被包圍的長方形地 空間配置請益](http://attach.mobile01.com/attach/201612/mobile01-02ff6437ecb77d16a64265c4f40ba6e4.jpg)
![[請問] 7X18米 被包圍的長方形地 空間配置請益](http://attach.mobile01.com/attach/201612/mobile01-531d1359feff8d0bca05cd1e5d996fa0.jpg)
![[請問] 7X18米 被包圍的長方形地 空間配置請益](http://attach.mobile01.com/attach/201612/mobile01-87257b49e713c6c69582617500ecfdb0.jpg)
大家好

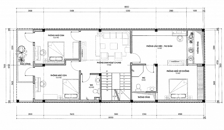
這是目前新家的原始設計
地坪是7米 * 18 米的長方形地,坐東北朝西南,大門於西南側
以面對房子的方位來說,左邊已連結3F高的透天,正後方也是3樓的透天,右邊是空地但未來可能也會蓋透天
所以已經有心理準備 窗戶僅是通風,看不到任何風景...



這份設計圖我跟老婆大人目前覺得不錯,比較在意的點有
1.綠化(種樹)的範圍太小
2.客廳無玄關
3.1樓孝親房與廚房的動線
4.2樓樓梯前的大空間如何妥善利用(圖上畫客廳,但客廳1樓應該已足夠)
5.閣樓的空間規劃是神桌與洗衣曬衣區,但私心想把閣樓東側做一間浪漫臥室可從天窗看星空..哈哈
希望能給小弟一點意見

---
回復1樓
是在越南沒錯,附上現場實景照
由於左邊跟後面都被醜醜的水泥牆包圍...所以不打算加大後院空間
十分感謝您的建議 很有參考價值

                                    
                    
































































































