請問除了這樣設計還有別的方式嗎?

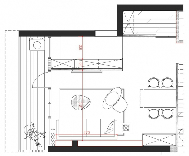
昨天家裡開始裝潢拆牆作業發現沙發後方有一根柱子(原本設計是平貼牆面)

請問除了這樣設計還有別的方式嗎?

於是設計師打算包柱子橫向做出平台掩蓋柱子

請問除了這樣設計還有別的方式嗎?

除此之外可以大家幫我想想別的方式嗎?

這樣感覺怪怪的

2015-05-13 15:27 發佈
文章關鍵字 方式 設計
再多作一根假柱

柱與柱之間可作橫隔板放東西


magi1216 wrote:
昨天家裡開始裝潢拆...(恕刪)
依設計師的做法感覺還可以阿, 後面變成一個櫃體上面可以置物,放點飾品或者書籍都可以啊!

只是櫃體底下空空的感覺有點浪費空間拉

因為我不知道你柱子深度, 如果柱子有10公分甚至以上的話, 其實搞個淺櫃體也是不錯的
(像是客廳總是會有看多的報紙或者備用的衛生紙吧, 可以收在那裏)


不專業幫你出主意:那靠窗簾的一側看你要不要搞一個開放式層架, 或者貼頂天立地的染色鏡
(茶鏡或灰鏡或其他雷射雕花也行)

或者簡單俐落點就乾脆柱子用鏡面包覆來虛化掉也可以

鏡面的顏色當然要配合你裝潢的色系


不過因為本人不懂風水, 但印象中鏡子好像常犯各種風水大忌

很在意風水的就隨便聽聽就好了

magi1216 wrote:
昨天家裡開始裝潢拆...(恕刪)


大大 可以的話 改一下設計~那天花板都把人切一半了

怎麼可以這樣設計呢~若是長輩來一定會說不好

若是可以的話想想其他做法~或是叫設計師幫你想辦法改變

雖然我也是打雜的~但我是不會這樣設計的

給你考量一下~版上很多神人~應該會打槍一下
因為上面也有一根大樑要包覆
全部封平天花板又太低
wsx0218 wrote: 大大 可以的話 改一下設計~那天花...(恕刪)



假設深度是夠放一些小擺飾的,也許這樣子也可以唷!!
然後背貼茶鏡,然後框可以用木頭做,牆面也可以直接上跟牆壁一樣的顏色。
但是我不是設計師,只是上班上到好無聊...所以腦力激盪一下.....
內文搜尋
X
評分
評分
複製連結
Mobile01提醒您
您目前瀏覽的是行動版網頁
是否切換到電腦版網頁呢?