1. 想買300公分的牛皮沙發, 怎麼放好呢
2. 陽台有一道牆, 有一扇門及冷氣口,約十至十五公分 可以再開一道門或窗嗎
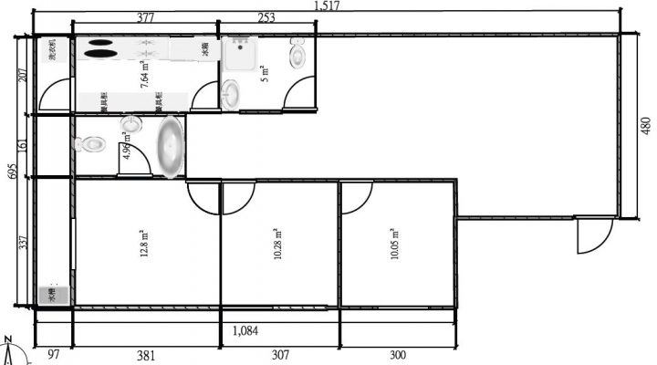
3. 老舊隔局都有粉寬粉長的走道,約有至少一坪 如果不改隔間的方式, 有什麼利用方式嗎? 走道放書櫃
如果改隔局,是不是一定要找設計師
4. 想在客廰裝吊扇, 除了軌道燈, 有其它光線足夠的方式
5. 如果全室只裝線版, 有沒有案例可循
6. 如果買些柚木實木家具, 風格跟廣闊的北歐或IKEA風好像粉不搭, 因為柚木顏色比較深, 沒有柚木看到作成歐式家具的
7. 因為有小小孩,想作一個小書室或遊戲室, 未來可以是書房,現在可以放玩具, 方便小朋友玩及收納
8. 想要有個大書櫃, 現在想放玩具, 未來想放書

看起來前後陽台要照舊不能外推
1.三個房間的同一面牆, 有嚴重的壁癌, 主臥室的那面牆防水完後就漆油漆, 大衣櫃不靠牆, 後方當儲藏區放換季的暖氣機, 粉重的三台大同電扇,及小小更衣區,日後如又有壁癌就自行漆油漆,另二房空間較小, 目前想到的只有牆防水完後木板封起來
2.客廳的光線只有二平門及一個冷氣孔, 光線不足,冷氣孔留下裝抽風機, 抽風機真的好物, 只是不太美觀
3.家裡看電視的時間不多, 需要一個遊戲區/書房/小客房,將主浴室的洗手台放於外面,加大遊戲室的空間, 走道空道仍粉大
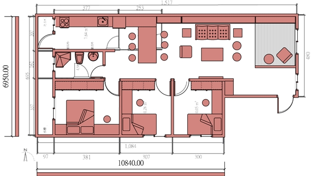
依據各位大大的建議, 我完成了以下三個方案, 請指點以下及以上
1. 改二浴室門, 加遊戲區

2. 改二浴室門, 加遊戲區, 縮小餐廳

3. 改二浴室門, 將洗手台放於走道, 加遊戲區































































































