剛好我媽媽有間30年的一樓老屋,就想給我們當起家的房子,也願意幫忙負擔
一些貸款,讓我們年輕人不會剛出社會就背了很重的債務,真的很感恩阿。
但那間房子有些問題需要解決,屋齡老舊自然管線要全部重配,但除此之外,
狹長型的空間、部分區域的壁癌都是需要處理的部分。
因此想向各位大大請益,想參考大家會如何處理這部分的問題。
第一:隔間

我們整體的預算,包含家具和電器用品,希望能夠抓在一百五十萬內,所以我
們沒找設計師,而是找認識的工班幫忙監工和總包。
這是原始的狀態,其中橫向的虛線是樑的位子,而大門在下方的部分,外面還有一個
不到一坪大小的女兒牆。
大概看一下就覺得這房子的動線有點麻煩,後面陽臺不是整體的,而被切割成兩個
三角形,且陽台的牆是不能打掉的,而因老舊的社區設計,在外不遠就是別人的住
家,後陽台的實際採光有限。
還好我跟我老婆不太需要準備孝親房,且未來規劃只生一個,所以兩房應該就能
滿足我們現階段的需求,且因為我老婆是營養師,在烹調上也希望能以比較健康
的無油煙方式,因此開放廚房的設置是可以接受的。
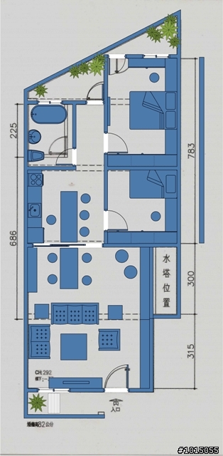
經過和工班大哥的討論,我們劃出下圖

一進門是一個約四坪地客廳,其中我們把女兒牆的部分外推,讓客廳空間
能夠大一點,且窗戶在外面一點可拉更多光線進來。
而兩個臥室音都在屋內無對外窗,因此會各開一個窗戶對外,只是對此這點我有
點疑惑,有必要做窗戶嗎?感覺只要留氣窗即可,因為光線基本上很難達到房子
的中段,留窗戶感覺用處就不大了。各位大大如何看呢?
而浴室因為預算,就不打算牽動位子徒增成本了。
目前看起來這樣的規劃還可以接受,只是客廳可能希望再增加一張長的工作桌
讓我們夫妻倆能夠在上面打打電腦。
誠請大大提供建議,幫忙我們構思一個更好的隔間方式(跪求)
另外關於壁癌,之前看了一些大大的文章,不知道有沒有前輩能夠推薦不錯的廠商?
感謝各位前輩、大大的幫忙。