最近終於買了房子
是老房子,所以整個需要整理和規劃
可是光是一樓空間的規劃就遇到與父母意見分歧的問題
雖然我才是屋主,但為了避免與強勢的父母鬧家庭革命,
並且能保留我夢想家的想法
求助大家協助給予意見!!!!!!!!!!!!!!!!(急需意見)
房子簡述:房子是連棟、長條狀
1F預計有車庫、客廳、廚房、孝親房
家庭狀況:父母自己有房子(在新房子距離兩分鐘路程而已)
孝親房是為了之後等父母年紀大到沒辦法爬樓梯時,才可能搬來一起住
----------------------------------------------------------------
父母希望的1F格局是:
「───────────────────────┐
│ │ │ │ │
│ │ │ │ │
前 │車 庫│ 客廳 廚房 │孝親房 │ │ 後
│ │ │ │ │
└───────────────────────┘
----------------------------------------------------------------
因為後方有一塊小空地,
所以我希望廚房能在後方,餐桌旁能有一個大落地窗,落地窗外就是那一小塊空地(能有小草皮和種些花)
所以我希望的格局是:
「────────────────────────┐
│ │ │ │
│ │───────│ │ │
前 │車庫 │孝親房 │ 客廳 廚房│ │ 後
│ │ │ │ │
└────────────────────────┘
缺點是車庫一進來會須經過一個小走廊才會到達客廳
(目前沒看過有人這樣做過)請問有類似這樣設計規劃的例子嗎?
-----------------------------------------------------------------
真的很希望能有廚房後方有一大片落地窗與草地
希望能請大家幫忙多想幾個『第二個格局的優點』,來與父母辯論!!
(因為怕本身對房子的規畫與考量可能沒有這麼專業和詳盡)
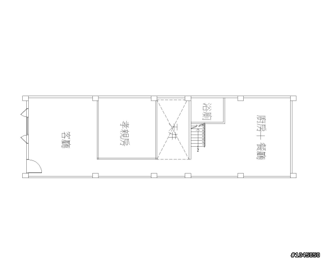
深度應為22m
所以在中央加個天井兼顧到孝親房的採光通風
這樣進大門後可以有一個大客廳
廁所做在天井另一邊也可採光通風
廚房餐廳位於最後有你想要的小空地種花草
這種設計到了2樓以上的房間都有雙面採光通風
給你參考看看吧

希望能請大家幫忙多想幾個『第二個格局的優點』,來與父母辯論!!
既然你格局都定了
那我們再建議怎麼改都沒辦法囉
要說第二個格局的優點嘛....
就是安親房移到前方
方便通風採光
可以幫忙顧車
可以幫忙充當保全
離大門口近 不用走到房子裡面
甚至在外面再多開一個門就可以直接進房間
這麼多優點夠了吧
要說缺點的話
進入屋內需先經過走道有種壓力感
窗戶被安親房擋住空氣無法對流
安親房不安寧 休息要聽馬路聲停車聲開門聲一堆聲音
整間屋子動線不佳
客廳之所以叫客廳是因為要面客用的
實在沒必要讓客人經過長廊才進入客廳
結論安親房放前面有利有弊
如果考慮在中間做個天井
那麼你跟父母間的問題都能得到徹底解決
內文搜尋
X





























































































