經濟上的壓力,家人間的磨擦,獨處時靈光剎現的喜悅,心情的三溫暖在房事都尚未完成1/3就夠小弟受了,真的是很辛苦更是有挑戰。
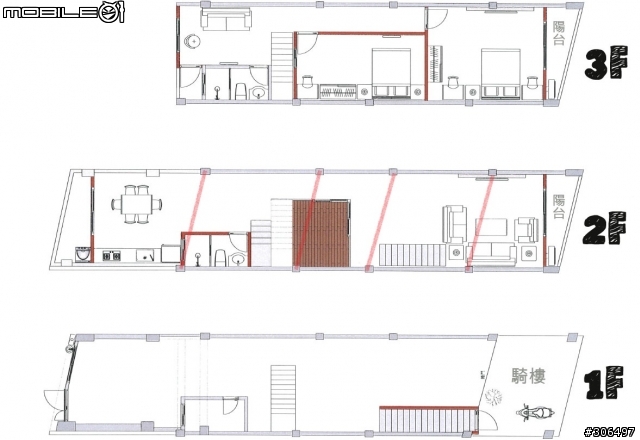
終於明天居家修繕的貸款就可下來,改房這件事...小弟家是一30年大路邊的透天老屋,避不開狹長且採光與通風皆不足的條件下,改善陽光、空氣、人(動線)也是我最大的第一考量,爬01翻書是每天的必修功課,逐漸有將居家局部在節省開支的考量下,將天花板走LOFT風格,而且沒想到母親居然也喜歡這樣的樣式,心想著格局與風格確定了,接下來的工作應該會更順利,但往往現實不會那麼如人所願,預算與需求僵持著,我的概念與設計工班衝突著,原因可能因為在鄉下地方,會這樣處理的除了商業空間外,親友同事等都沒有經驗,設計施工團隊也是,人、是習慣性的動物,總會選擇最擅長且習慣的方式處理問題,所以...我的問題得到的答案總是:
這個不行啦、沒有人這樣做、你是要住的不是要開店的對吧?、沒看過人這樣用家裡、這樣會多花很多錢、沒什麼好改的,就是這樣啦!! etc...
問了好多,總是這樣的回覆...灰心時會想這樣2~3佰萬的裝修案是小咖,當然沒人會認真站在你的角度,為你設想!!
不過我還是打起精神,深夜中苦無思路,附上平面圖,上來求救求教!!盼有經驗或閒暇的大大,指點指點。

問題:
希望節省天花預算,除臥室外全改走明管,但屋體結構有斜式的橫樑,在客廳等公共空間出現,這樣的橫樑結構,有什麼方式可以達成?又在水電管線處理上會增加多少預算呢?




























































































