陽台是否外推請益

因為坪數不大關西 想外推陽台 (爾且本來兩房要多隔一間玻璃隔間書房)

但是又怕日後換大台洗衣機放不下

現在10公升洗衣機寬58CM 剛好放得下外推後剩餘寬度

但是日後換大台可能就....悲劇了....

請教各位大大 有沒有什麼方法可以兩全其美

我很想保留餐桌 或者說 陽台不建議外推 還是怎樣的

幫忙看一下 謝謝

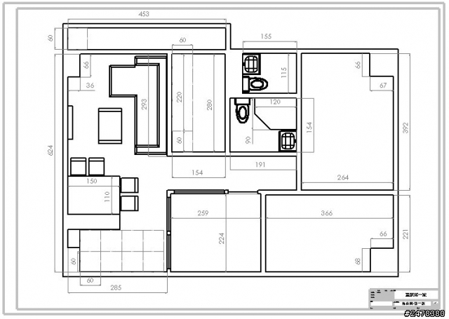
如圖



陽台是否外推請益




陽台是否外推請益
2013-08-10 16:35 發佈
文章關鍵字 陽台
陽台外推在消防安全和結構上都影響許多,真的…能不動盡量不要去動。
外推也不會讓你客廳增加多少空間
既違法規,也易漏水

看起來最不必要的反而是那個玻璃隔間書房
小空間有小空間合適的配置,書房也是有多種變通方案(可替代性高)
硬要趕流行去隔個書房,才是浪費空間

Charles-Huang wrote:
因為坪數不大關西 ...(恕刪)
內文搜尋
X
評分
評分
複製連結
Mobile01提醒您
您目前瀏覽的是行動版網頁
是否切換到電腦版網頁呢?