• 3

[請益] 協助客餐廳與房間配置

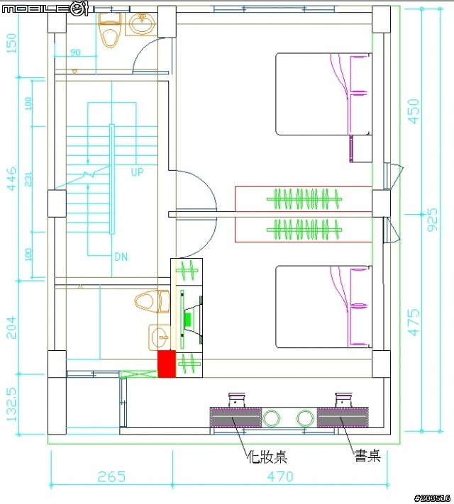
各位前輩,小弟自己稍微規劃一下房間配置,

但是書桌不知道這樣擺好不好,想請教看看各位有沒有比較好的方案。

書桌與化妝桌中間想做一個收納櫃(上方朋友來也可以有地方坐)

後面房間小弟還沒畫,不過大致上裡面也是會放電視、書桌、化妝桌,

或是有沒有前輩可以幫小弟畫看看,給小弟一些參考。

另外就是1F的規劃,真的不知道怎麼擺比較好,

要擺下餐廳、客廳、廚房、神明廳,不知道各位大大有什麼建議嗎??

謝謝。



[請益] 協助客餐廳與房間配置


[請益] 協助客餐廳與房間配置
2013-07-08 20:49 發佈
有前輩願意指導或是給個建議一下嗎??

感謝....
黑夜將城市籠罩,想念蔓延在細胞。想妳的擁抱,妳的微笑,想到快要瘋掉,愛妳到莫名其妙,上了癮無可救藥。
請問你的房子的座向是?
你二樓這種沒陽台,沒深窗的格局,
首要解決是日曬的問題,下雨天不能開窗也是一大困擾。
dear sir

房子坐向朝南,
日曬問題應該就只能裝窗簾了,
不然就要貼隔熱紙了


jackhung_web wrote:
請問你的房子的座向是...(恕刪)
黑夜將城市籠罩,想念蔓延在細胞。想妳的擁抱,妳的微笑,想到快要瘋掉,愛妳到莫名其妙,上了癮無可救藥。
你的房子是二次施工把陽台外推嗎?
二樓前面房間的廁所規劃很奇怪,動線彎來彎去,
面南的房子,如果南面有一整片陽台簡直棒透了,
可惜你這塊空間是包在室內。

deepblue-pisces wrote:
書桌與化妝桌中間想做一個收納櫃(上方朋友來也可以有地方坐)

朋友來你家會在主臥聊天?應該是客廳才對吧,
何況這個位置白天會非常熱,應該沒人想坐這個位置。

deepblue-pisces wrote:
後面房間小弟還沒畫,不過大致上裡面也是會放電視、書桌、化妝桌,

每個房間都配備電視,書桌,化妝桌的用意為何?是要每個人回家都窩在自個房間嗎?
建議你重點放在公共區域的規劃,尤其你那個廚房就夠你頭大的,
房間就回歸更衣睡覺的用途,床、衣櫃擺一擺就差不多了。

神明廳不是可以放頂樓嗎?這樣你一樓空間可以大一點。
二樓化妝桌和書桌不建議放陽台外推,不過你床後面是陽台嗎?怎麼其中一間的扇形(門?)開在櫃子?

一樓廚房的建議還是裝個門比較好,

jackhung_web wrote:
你的房子是二次施工把...(恕刪)


dear sir

房子結構已經好了,所以那個地方都是已經外推出去了,

家裡成員有爸媽+我們三兄弟,

所以才會規畫成每間都是套房(電視/化妝台是為了之後結婚方便使用),

另外2F跟3F的格局都是一樣的,

神明廳沒有擺在頂樓是因為父親說以後他們老了,可能幾乎都不會上到頂樓,

另外就是也有可能我們之後如果沒住家裡,就可能更少會有人上去拜拜。

1F是真的讓我們很頭大,所以上來請教各位前輩。
黑夜將城市籠罩,想念蔓延在細胞。想妳的擁抱,妳的微笑,想到快要瘋掉,愛妳到莫名其妙,上了癮無可救藥。

a277888 wrote:
二樓化妝桌和書桌不建...(恕刪)


dear sir

那前輩有建議怎麼擺比較好嗎??

你說的扇形那個是窗戶,

所以我前面房間衣櫃那邊會留空間,

不會把窗戶給擋掉。
黑夜將城市籠罩,想念蔓延在細胞。想妳的擁抱,妳的微笑,想到快要瘋掉,愛妳到莫名其妙,上了癮無可救藥。
deepblue-pisces wrote:
dear sir那前...(恕刪)

基本上一樓要規劃幾個隔間比較好,客廳可以方正一點;廚房也不要做開放式的,做個拉門也好,不然熱炒的話整間房子都是油煙味了。

然後二樓以上的空間盡量一樓一個房間,比較好規劃床以外放桌子和衣櫃的空間;但前提是有四五樓的狀況。不然也可以多個房間四樓,然後一樓多規劃一個房間當孝親房;這樣也有四個房間。
神明廳放在客廳那面牆跟餐廳的中間,面對應該是儲藏室的位置。不知道這樣可以呼?...
這樣沙發區就會是沙發了。
  • 3
內文搜尋
X
評分
評分
複製連結
Mobile01提醒您
您目前瀏覽的是行動版網頁
是否切換到電腦版網頁呢?