請問格局擺設問題


請問格局擺設問題

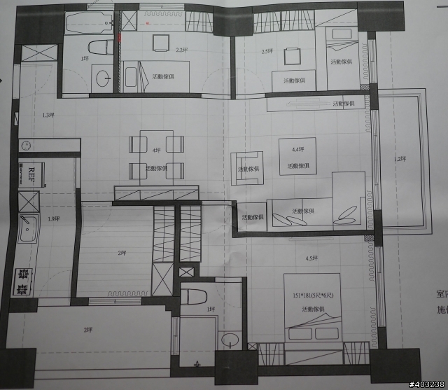
各位大大好:

這是設計師幫我們規劃的擺設位置
本來客浴旁的房間設計師是規劃床側邊靠廁所牆,床尾對窗
這樣活動空間似乎較大

但考量到床頭尾不對窗
床頭不臨廁所牆和不壓樑
設計師只好規劃如圖,床頭靠廁所牆,廁所牆做隔音牆,虛線部分為樑

請問哪種擺設較恰當?
2013-05-24 15:03 發佈
文章關鍵字 格局 問題
預算夠門改掉,問題就解決了

因為另一邊虛線的部份是樑和柱子~
且窗戶的左前方是別人的客廳..
謝老師說門上有樑穿過叫做穿心煞,要在門邊掛葫蘆(不記得是一邊還是兩邊要掛),照圖看一共有4個門是這樣。
內文搜尋
X
評分
評分
複製連結
Mobile01提醒您
您目前瀏覽的是行動版網頁
是否切換到電腦版網頁呢?