![[請益] 設計舒適便利家~](http://attach.mobile01.com/attach/201301/mobile01-0d02f81c2d0fe45e8acecda9c39fd39b.jpg)
我不是做空間設計的,拜網路發達,加上有許多天馬行空的想法,為了預售屋斷斷續續規劃了一個月,還是沒有一份滿意的圖面,重新整理思緒後, 檢視之前一張張的空間規劃圖, 找出符合我們家人的需求:
1. 最小客變花費
2. 神明廳空間為主, 其他空間為輔, 也就是神明廳要先規劃
3. 先規劃現有家具空間位置, 考量動線, 舒適, 採光等基本原則
4. 最後以系統櫃規劃以及填補空間
5. 極少量木工AND裝修 (包覆, 小遮蔽, etc.)
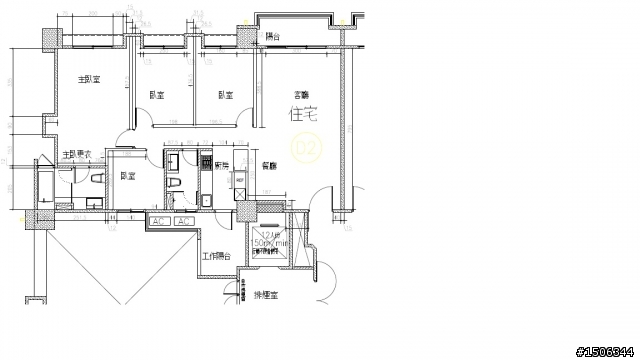
以下是新的格局圖:
![[請益] 設計舒適便利家~](http://attach.mobile01.com/attach/201301/mobile01-22af61f0f8d1e5f4d2c59f487b7a5649.jpg)
![[請益] 設計舒適便利家~](http://attach.mobile01.com/attach/201301/mobile01-8d8b1aea1666a45fb3c2d1a4341ca707.jpg)
1. 只移動2個隔間牆,減少房間直角零碎空間, 新增神明廳空間
2. 神明廳空間要注意神桌安裝原則外,也思考如何增加採光, 以及設置隱蔽的大儲物櫃, 左側會設置拉門(清玻璃)來隔離香灰 (PS. 之前因為想要落地窗採光, 神明廳不是規劃在落地窗前, 但其實還是可以設計讓光透到客廳, 因此決定讓最好的空間留給一直以來守護我們家的神明,其實也有很多好處,不用傷腦筋裝24小時運作的排煙機,省了落地窗的窗簾預算, etc.)
3. 沙發, 餐桌(長桌可變圓桌), 餐桌椅, 神桌, 床都是現有家具, 依實際尺寸擺放, 保留客餐廳開放空間, 圍爐時候圓桌也有空間可以放, 電視就壁掛在沙發對面牆壁
4. 廚房空間設備都是建商附的, 只會用清玻璃包覆及做拉門, 不壓縮空間感以及防止油煙擴散, 冰箱中意5xxL機種, 所以整體深度要做到80cm
其他小變動以及線路會根據這些空間功能來調整, 列在客變項目中
目前還蠻中意這樣的規劃, 但是還是有煩惱以及聽看看各位的建議:
1. 紅色圈圈還在煩惱是否要調整隔間牆, 那個房間小, 左右鄰廁, 所以會當成多功能房(休閒娛樂, 書, 客房)
2. 配合那個隔間牆是否變動, 主臥以及更衣空間的系統櫃要如何規劃
3. 神明廳隔間牆, 我比較傳統, 所以會用12cm厚的實牆, 神桌寬5尺1(154.9公分), 加上落地窗高250cm, 而且要做龍鳳天花板(高30cm), 因此這面牆高度做到180cm, 左側連到壁面, 做一個門的高度, 高180~300cm就用木工裝修佐以玻璃透光, 也就是說, 左側以及上方都會有光進來, 神桌的下方不知道可以用玻璃嗎(工程上應該沒問題, 對神明有甚麼禁忌嗎)?
============================記錄==================================
============================楔子==================================
現在的舊家, 之前因為某些需求, 急於農曆年前完工, 所以就匆忙網路上找到裝修統包, 討論過程也沒有詳細圖面就簽約,2個月過後完工, 事後到如今雖沒有大問題, 但也不滿意, 感想就是如果能再重來, 一定要每個細節都溝通過, 特別是工法,而且很討厭那種"一式"的報價, 特別是木工, 有幾個項目覺得不值, 不過這也只能怪自己時間不多, 讓木工憑經驗發揮, 落差甚大(聲明只針對我的case, 不是所有統包)
看到電視節目介紹, 還有網路上"設計家","591裝潢"網站, 這個預售屋本來也想找幾個設計師先來談談彼此是否能MATCH,但是這個預售屋要2年後才完工陸續交屋, 拜讀幾個不錯的mobile01討論串, 也激起自己來用心設計屬於我們的家
我是屬於實用主義者, 房子是我們在住的, 只有我才完全了解家人的生活習性, 而且隨著時間流逝, 家庭,成員以及每個元件其實都會有不同程度的變動
因此這個討論串會延續2年多, 我會開始討論客變, 設計櫃體, etc. 記錄起來, 一方面能跟mobile01鄉民交流, 擇優改善我的設計,一方面也漸漸組成我們理想的家, 並把最重要的成果(資訊)分享




























































































