目前小弟的客變想法如第二張圖所示,因家中目前只有2人所以拿掉一組廁所,
拿掉一間房間加大客廰空間,加大廁所空間設計成乾濕分離,
目前大概就只有這些想法,麻煩各位大大有任何建議可以提供給小弟參考,小弟會非常感謝~~~~


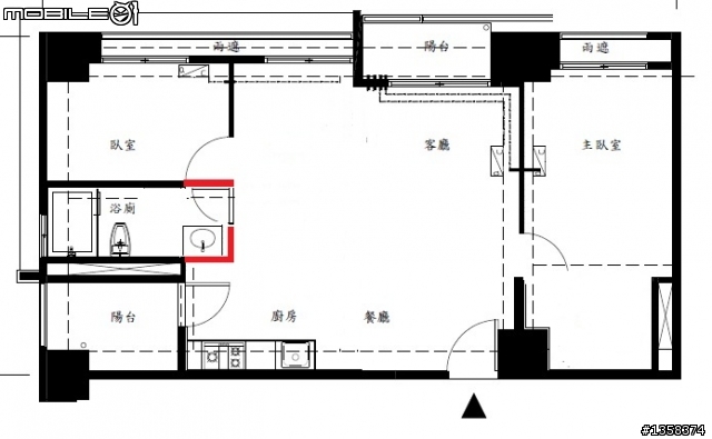
james_hsiung wrote:
各位大大,小弟新買的預售屋格局如下圖,室內約27坪,下個月可以開始客變了,
目前小弟的客變想法如第二張圖所示,因家中目前只有2人所以拿掉一組廁所,
拿掉一間房間加大客廰空間,加大廁所空間設計成乾濕分離,
目前大概就只有這些想法,麻煩各位大大有任何建議可以提供給小弟參考,小弟會非常感謝~~~~
