想增加書房應如何規劃?煩請協助

先謝謝 miket5 大大的建議

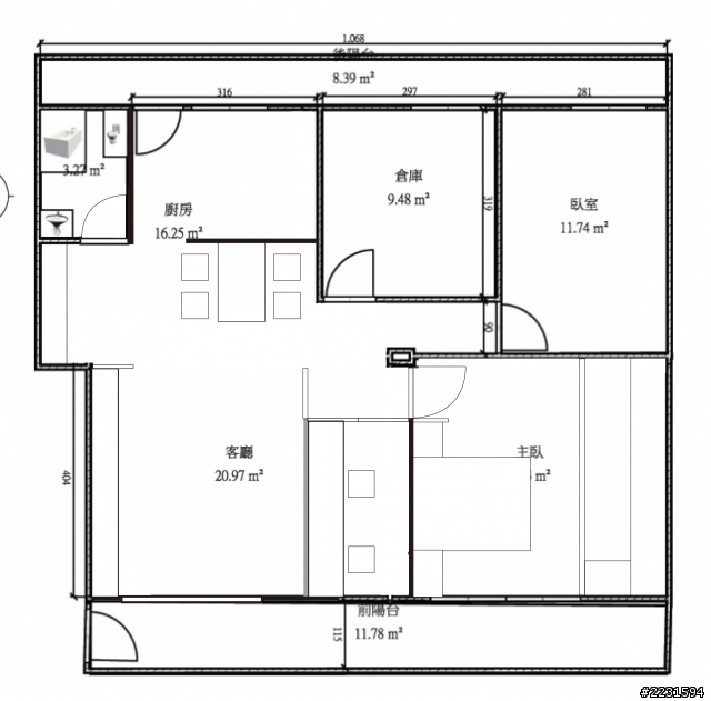
我再補充一下敘述,懇請大大協助研究一下
1.前後陽台暫無打算外推,習慣了前陽台弄些花草,後陽台晾衣服
2.小朋友目前只有一位,次臥部分考慮一間雙人房及一間單人房
3.主臥希望在大一些(女王的衣服蠻多的考慮設置系統櫃),書房可在小一點
4.補上新圖標示樑的位置,中間四方體為柱子,若依 miket5 大大的建議規劃是否需再考慮修飾問題
5.改裝費用希望能以節省一點為考量

懇請大大們不吝指導了,感謝


想增加書房應如何規劃?煩請協助
2012-09-06 23:01 發佈
文章關鍵字 書房

jarco wrote:
家裡小朋友日漸長大老...(恕刪)





前後陽台可以外推嗎??
可以再多幾個變化
使用上的錯誤,把原有圖片刪掉了
在這邊重新補上,回覆內容已編輯到第一頁
請大大們協助
jarco wrote:
使用上的錯誤,把原有...(恕刪)




這應該是動到牆面較少~~擠較大空間的方案~~




後面長陽台太長+窄,利用率低
可以把廁所+廚房回縮,2間房間外推
取得房間變大,陽台變短變寬的空間

前陽台~~客廳不變,大房間外推

以上小看法~非專業路過

miket5 wrote:
這應該是動到牆面較少...(恕刪)



想增加書房應如何規劃?

附圖供參考
以上
謝謝兩位大大熱心提供專業的建議
會先將配置與家人討論,若有不懂的地方
懇請大大們不吝指導,再次感謝
內文搜尋
X
評分
評分
複製連結
Mobile01提醒您
您目前瀏覽的是行動版網頁
是否切換到電腦版網頁呢?