請各位大大提供室內格局的意見

請各位大大達人提供室內格局的意見

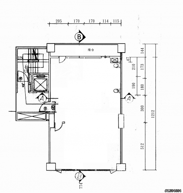
如下圖一,約28坪需要重新規劃格局為三房兩廳一衛(原始廁所位置位於右上方)

圖一
請各位大大提供室內格局的意見

希望能三間房間都能保有採光,且因空間不大,想盡量不浪費空間
自己初步規劃如下圖二


圖二
請各位大大提供室內格局的意見

請各位大大提點小弟一下,非常感謝~

2009-07-24 15:25 發佈
內文搜尋
X
評分
評分
複製連結
Mobile01提醒您
您目前瀏覽的是行動版網頁
是否切換到電腦版網頁呢?