• 7

急: 餐廳裝吊燈,要或不要之設計師回覆

吸頂燈可以用這種的





餐桌可以用這種的



如果覺得不夠亮可以在牆壁上裝壁燈


虛心求教,奮發上進,努力不懈,懇請指教!
哇!題外話

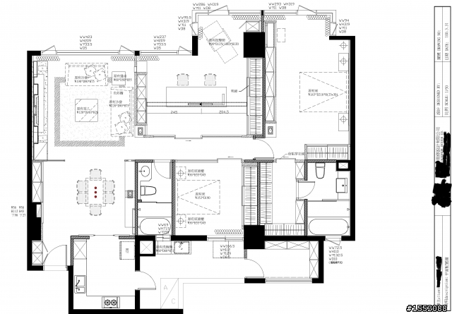
你的房子平面圖看起來很大,地平應該不小,廚房裝潢也很漂亮....
您好~其實我們廚房也是當初為了裝不裝吊燈討論很久~最後呢因為我男友的媽也是裝了一個~個人看法是你可以把餐桌擺成直的~反正平時餐椅會併攏起來所以走道空間不至於狹窄~主燈可以選擇比較方型的~因為不管你要把餐桌橫放還是直放都不會過於奇怪~個人小小看法供您參考囉~畢竟為了一盞燈得罪婆婆也沒必要~用單盞的方式至少以後你把他留著要變成崁燈應該也可以吧!你可以先跟木工師父確認~
我家的餐廳也有裝吊燈,
且是我堅持的松果燈,
整個感覺好粉多,
空間也有了區隔,
雖然到現在我一次都沒在餐桌上吃過飯,
有時反而在那邊看看書、用用電腦,
泡杯茶或是咖啡,
整個感覺很棒,
算是我最喜歡的角落之一~

依照您新家的裝潢,
如果是我,
我還是會裝個吊燈,
比較亮,
也比較有主題,
不過還是要看您餐桌位置打算怎麼擺,
如果您幾乎不在餐桌吃飯,
那餐桌也可以結合其他用途,
不單純讓他只是個餐桌,
不是嗎~

TO silentocean,
發現您客廳的時鐘和我家的一模一樣~

就是愛兔崽 wrote:
TO silentocean,
發現您客廳的時鐘和我家的一模一樣~ (恕刪)


  英雄所見略同

  有鐘擺功能的鐘,很適合極簡風格
哇,一個早上沒上01
已經有6頁了
真是謝謝各位的回應
其中有幾篇,提供新古典式吊燈的建議
謝謝你們,但我家雖然走白色路線
但真的不是新古典啦

提供之前有 po 過的3D圖給各位看看
成品讓我賣個關子,等完工後再一次 po上來




至於餐廳燈的部分
有大大建議可使用瓖在天花板上的燈 (一下忘了那個名詞,是貼頂燈嗎)
我也從網上找了幾張照片給老公做參考
他不喜歡拉
現在已將Mr.Y 大大的建議提供給設計師
另外我和老公也很仔細的找了許多我們兩共同喜歡的吊燈樣式
(因爲,還是不想違背婆婆的意思嘛)
但我們很賊的是,爲了怕婆婆會反對我們選的樣式
我們直接email 給設計師燈的照片,請他幫我們找
這樣就不用麻煩婆婆去買了
哈哈哈哈

以下為我們選的幾個吊燈造型
簡單,又不失活潑
又能 define space
希望一切順利儸

To silentocean:
你的鐘,也是我當初一直慫恿我老公買的也
可是最後還是決定等新房子好後,再買
我們的眼光還蠻像的嘛

To Steffen:
你的吊燈還真的是三顆小雞蛋也
非常特別,也蠻搶眼的
但照明度夠嗎?
您挑的燈第一張有點像我家的.不過我家只有三燈.實體圖請參考.
這種燈裡面有變壓器,用了快四年後壞了一個.
http://blog.yam.com/ybchen/article/7679751


設計師回覆了
他們依照我們餐桌的大小 (伸縮性餐桌,合起來時有135cm,打開來後有170cm)
又按照我們昨晚寄給他們吊燈的照片
他們覺得很適合

以下為設計師所附的設計圖 + 吊燈位子
和我們昨晚所附的吊燈樣式照片










tiffanyh404 wrote:
設計師回覆了他們依照...(恕刪)


依你們家的空間設計 該區域裝主燈是合適的 他可以把餐廳突顯出來
但是如果要裝吊燈 問題就比較複雜了
首先要注意冷氣出風口和吊燈的重量 否則吊燈變風鈴 看起來很恐怖
再來如果你考慮移動餐桌 那吊燈不在餐桌正上方 會有點遺憾
更嚴重會影響到動線 怕長的高的人會撞到
再來你們家進廚房的動線會經過餐廳中心線 所以餐桌勢必得偏一邊 這樣一來你的吊燈一定是偏一邊吊
以你目前考慮的吊燈樣式 格局太小 亮度不夠 沒辦法當主燈 有點為了裝吊燈而裝
可以想像以後那個吊燈幾乎不會開 即使真的要在餐廳吃飯 還是會開其他的光源 那吊燈就失去意義了
這種吊燈適合在商業空間 用來區隔小空間 譬如吧台區、包廂區 但是不適合你們家的空間
理想的餐廳吊燈 就是這個空間只開這一盞燈亮度就夠了 大家的focus才會圍繞著餐桌
再來一定要吊夠低 你可以稍微抬頭就可以欣賞到燈全部的細節~~

說句難聽的話 坊間的設計師怎麼用都是那幾套 燈就是那幾組 每一家都一樣
裝潢的很複雜 實用性不足 裝潢不是裝飾 裝飾是要有人文的痕跡才會耐看有意義
設計師的著眼點應該以功能性為出發 解決空間及動線 其次才講究搭配跟外觀 絕大部分的裝飾空間應該留給屋主

我建議 你可以考慮天花板中心直接裝格局大一點的主燈 把餐廳直接點出來 畢竟你的餐廳太獨立了
如果真的要吊燈 最好自己去燈飾店找 不論價格跟質感都會比目錄上的要好多了
  • 7
內文搜尋
X
評分
評分
複製連結
請輸入您要前往的頁數(1 ~ 7)
Mobile01提醒您
您目前瀏覽的是行動版網頁
是否切換到電腦版網頁呢?