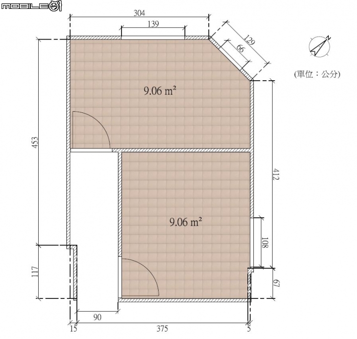
一、想法
(一)想把家中的其中一房隔成兩間作為寶貝的臥房,打算在房間右上角的切角區域作個高架的林質地板當成床板,床板寬度比市售的單人床大約25~30cm左右,床的下方就作2~3個大抽屜來收納,一來可以在高架床邊坐著,二來可以節省空間。
(二)兩間房的擺設以極簡為主,女孩房的空間及衣櫥可大點,需要有梳妝台。
(三)床頭、床尾不正對門、 不正對窗,側對無妨。(圖的下方有樑沒畫上去)
(四)大致這樣,其它的一些擺設就去ikea找靈感。
二、問題
(一)請問在圖上右上方切角處要架高架地板如何製作?
(二)這樣隔法及空間,請問各位版大有何建議?
(三)Line怎麼搜尋不到,請問該如何加入SweetHome3D的Line群組?
請各位版大不吝指教,謝謝。
以下是小弟正在製作的房間平面圖
隔間前平面圖

隔間前立體圖

隔間後平面圖

隔間後立體圖

隔間前sh3d檔
隔間後sh3d檔
hungsh25 wrote:
小弟初學SweetHome3D,最近正在為家裡的小公主及小王子佈置裝潢他們的房間,在作圖時遇到了幾個問題,,有勞版大解惑,感恩。
一、想法
(一)想把家中的其中一房隔成兩間作為寶貝的臥房,打算在房間右上角的切角區域作個高架的林質地板當成床板,床板寬度比市售的單人床大約25~30cm左右,床的下方就作2~3個大抽屜來收納,一來可以在高架床邊坐著,二來可以節省空間。
(二)兩間房的擺設以極簡為主,女孩房的空間及衣櫥可大點,需要有梳妝台。
(三)床頭、床尾不正對門、 不正對窗,側對無妨。(圖的下方有樑沒畫上去)
(四)大致這樣,其它的一些擺設就去ikea找靈感。
二、問題
(一)請問在圖上右上方切角處要架高架地板如何製作?
(二)這樣隔法及空間,請問各位版大有何建議?
(三)Line怎麼搜尋不到,請問該如何加入SweetHome3D的Line群組?
...(恕刪)
Line討論區: Sweet Home 3D台灣網站
歡迎你加入
內文搜尋
X





























































































