
感謝M大的分享~~
想請教有關桶身的問題
請問不鏽鋼桶身&歐化桶身哪個比較好啊?
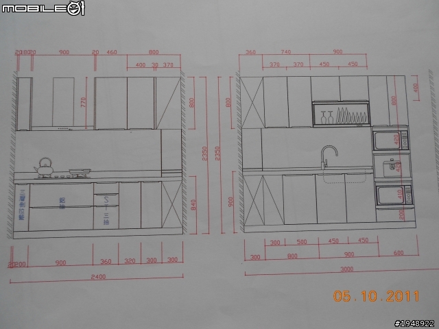
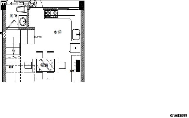
我目前是規劃一字形廚具
下櫃在想說要整個都是不鏽鋼?
還是只有水槽桶身做不鏽鋼就好?
還有不鏽鋼台面
會不會怕熱鍋放上面啊?
會像水槽那樣裡面冷卻之後會凝結水珠嗎?
另外想請問

這款水龍頭好用嗎?
會不會凹一凹裡面很快斷掉?
還是要用三合一的龍頭?(冷熱水和RO共用)
會不會這些水互相干擾?
謝謝~~~~

Yappimama wrote:
M大..有一點不明白...(恕刪)
kikumomo wrote:
這串討論看下來真是收...(恕刪)
cable921 wrote:
看了M大的文章一整天了!!
對了廚房的認識又有更進一步的了解!!!
真是受益匪淺呀!!!
不過比較少看電器櫃的板材的討論 ...(恕刪)
linda6632 wrote:
M大您好,要向您求助...(恕刪)
linda6632 wrote:
感謝版大的幫忙,先謝...(恕刪)