2.這種房型夏天真的很熱,看起來一樓是否就要安裝至少兩部冷氣?客廳、和室?廚房需要嗎?
3.一樓樓梯旁原本就是一間約一坪不到的廁所,現在未來要配合孝親房,設計師建議廁所外拉出來,施作淋浴空間,另外洗手台是獨立出來,這樣的設計有無大缺點?
-----------------------------------------------------------------------------------------------------------
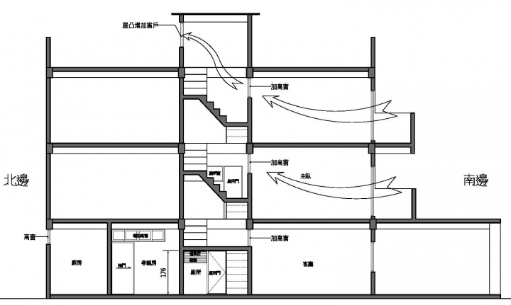
小時後家裡也是這種狹長街屋,通風真的不好,照明幾乎無解,通風還有救,我就照你的圖畫了簡單的剖面,希望有所幫助~
因為不知道你家的座向,假設了坐北朝南,夏天的風向是南往北吹,窗戶開對是有幫助的~
小孩房和書房那邊因為樓梯的關係,只能在門上方開通風窗了

內文搜尋
X





























































































