
格局變化有大了一點參考看看
1. 廚房一定要變 否則在意開門見灶 玄關幾乎無解
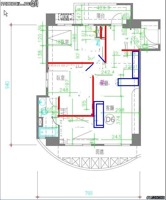
進大門後直走,玄關頗氣派 右轉陽台 左轉進廚房區
優點是 大門一直到 正面的紅牆 都可視為玄關區 有很多空間 可以設置鞋櫃 以及收納櫃
而由陽台門一直到廚房區半牆的這塊方形區域 也可以考慮變化風格 陽台很大可以把陽台的景帶入室內
可以參考網路上很多"陽台內推"的概念
進入廚房區 靠牆藍色長方形是流理台 直角藍色長方形 中島配飾 或吧檯配置 都可考慮
旁邊擺個小餐桌 就可當用餐區
2. 空間不夠 就考慮少一間衛浴吧
小三房格局不要強求兩套衛浴,如果我自己我會考慮主套房的衛浴撤掉,會比較方便些,但你的客浴,位置也不太理想,反倒是留下主衛浴好些,而且女王想泡澡的意見一定要考量~哈哈,留下的主衛浴右側開一個小門也有客浴功能,也可以考慮用推門 節省門扇的空間,浴室兩個門 想好使用邏輯 設計門鎖 使用上不會有大問題,動線 從客廳進入書房後再進入此小門 也算OK
可能的缺點是 左上角房間的人 上廁所要走很遠 但應該還可以接受啦~!!
3. 格局變化
原本的客廳和次臥真的太小了,客浴直接撤掉後,左上角的房間放大,
原本的主臥改變位置,主臥牆面的配置 必須和左上角房間的牆面彼此斟酌 尺寸位置 自己拿捏一下
客廳可以稍微上移與後退,配合主臥變位置 挪出沙發到電視牆面的長度 而下方挪出一個大氣的走道
變化後神奇的是如此還可以空出一個小空間可以當小書房,也不一定要死幫幫的書房設計,鋪個木地板,擺幾件有味道的桌 櫃 椅 留點白 加點綠 也可以很有味道
房間格局變化,最花錢的一定是浴室移位,所以我完全沒有動到留下的主衛浴,牆面敲敲打打,算花小錢不至於太傷,敲掉牆面後,要新設的牆面,可以考慮和櫃體一同施作,就可以省下新牆面的費用,隔音問題請施工搭配隔音棉便可。
廚房移位牽扯到的排水問題我就不是很確定麻煩或不麻煩,但起碼會比浴室簡單許多。
梁柱位置我沒有考量,但如果有心要變換格局,而真有造成妨礙的話,有才的設計師,應該都可以很容易解決
hydroallen wrote:
格局變化有大了一點參...(恕刪)
第二種變化也可以參考
不喜歡浴室有雙門的話
封掉原本的門 開浴室右側的門 小書房右側加上兩片式或三片式的推門
推門關上時 和主臥變身為超級大套房
推門打開時 就不會影響客浴的使用
不過這樣的設計比較適合 小倆口 小書房也能變 衣帽間規劃
空間怎麼配置與使用 和居住人數 關係 也是很有關聯的
總之 參考看看囉~~~!!
hydroallen wrote:
1. 廚房一定要變 否則在意開門見灶 玄關幾乎無解
進大門後直走,玄關頗氣派 右轉陽台 左轉進廚房區
優點是 大門一直到 正面的紅牆 都可視為玄關區 有很多空間 可以設置鞋櫃 以及收納櫃
而由陽台門一直到廚房區半牆的這塊方形區域 也可以考慮變化風格 陽台很大可以把陽台的景帶入室內
可以參考網路上很多"陽台內推"的概念
進入廚房區 靠牆藍色長方形是流理台 直角藍色長方形 中島配飾 或吧檯配置 都可考慮
旁邊擺個小餐桌 就可當用餐區
非常感謝H大花這麼多時間幫我想及回覆!!
將廚房移到側邊確實是一個可以考慮的點,這樣整個空間會變得更大!!
廚房靠邊也可以做成L型的,可以配置的選擇更多了
我再問看看廚房管線的問題,看難不難處理
另外,我的大陽台其實是後陽台耶....所以"陽台內推"應該是不適合?
hydroallen wrote:
2. 空間不夠 就考慮少一間衛浴吧
小三房格局不要強求兩套衛浴,如果我自己我會考慮主套房的衛浴撤掉,會比較方便些,但你的客浴,位置也不太理想,反倒是留下主衛浴好些,而且女王想泡澡的意見一定要考量~哈哈,留下的主衛浴右側開一個小門也有客浴功能,也可以考慮用推門 節省門扇的空間,浴室兩個門 想好使用邏輯 設計門鎖 使用上不會有大問題,動線 從客廳進入書房後再進入此小門 也算OK
可能的缺點是 左上角房間的人 上廁所要走很遠 但應該還可以接受啦~!!
不過這動線對主臥上廁所真的不方便,我其實私心是比較希望在外面保留一個小小的衛浴可以上廁所
hydroallen wrote:
客廳可以稍微上移與後退,配合主臥變位置 挪出沙發到電視牆面的長度 而下方挪出一個大氣的走道
變化後神奇的是如此還可以空出一個小空間可以當小書房,也不一定要死幫幫的書房設計,鋪個木地板,擺幾件有味道的桌 櫃 椅 留點白 加點綠 也可以很有味道
小書房的位置變更後真的很不錯~~~真的有神奇的感覺,這樣靠窗邊,採光也很足
唯獨二個廁所門有些怪怪的....
再次謝謝H大的建議,讓我獲益不少!!

hsuch wrote:
去年買了一間預售屋,最近終於開始通知驗屋了
實地進去看了之後,才發現,跟當初看樣品屋的感覺差好多呀
整個室內空間變好小....>"<
1.因為一進門就面對廚房,讓客廳、臥屋都變得好小
本來想將廚房整個平移,但因為廚房跟廁所、後陽台的整個管線都在一起
好像沒辦法去動到?
2.主臥的空間好小,但再往外向客廳推的話,客廳就沒空間了
但主臥這樣的空間,好像要做系統衣櫃的話,會讓主臥變得更小了....
一直為這室內空間傷惱筋呀,請版上設計達人救救我,幫我看看到底該怎麼辦??
才會讓室內空間看起來大一點,房間也大一點
因為自己不是專業設計師,下面附上自己畫的圖,感激不盡!!!
,
...(恕刪)
您的房子有23坪(不含外牆及柱),此平面圖得廚房開門方向,要考慮到冰箱的出入大小,而冰箱的尺寸在右上角看現場容納得下,如果可以,此格局是不錯,否則儲房開門的位置要改掉,天花板的設計自己再去做,如果您想更改,如下檔您可以下載更改。
Sweet Home 3D原始檔: http://webhd.xuite.net/_oops/scleea/dfb
選廣告後,下面有出現數字,要填數字後按下”開始下載”,等10秒才會出現下載。
免費3d軟體下載(本檔案要下載v3.8bata4版才可以如圖中所示,否則一些紋理會跑掉。
http://www.mobile01.com/topicdetail.php?f=360&t=2749829&r=3&last=38064736
v3.8 bata 4 Java Web Start下載(需安裝java程式): http://www.sweethome3d.com/SweetHome3D.3.8.beta.jnlp


















內文搜尋
X































































































