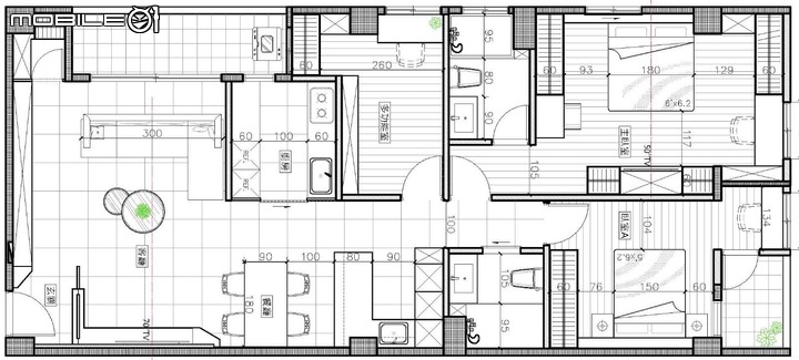
其實原本會覺得客廳小是因為在沙發左邊有個太大的量體 造成一個無形的壓迫感
我這邊稍微修改了一下配置 玄關與客廳用地坪材質區隔出一個無形的分界
把中廚 西廚 與用餐區域 做了一個中軸線的連貫 空間動線上會更好用唷~
客廳電視牆 設計旋轉式 在餐廳吃飯時也可以觀看
主臥將衣櫃做了一個L型的連續樣式 也避開原先床頭有窗的小風水禁忌


不知道能不能小廣宣一下

我們是雅適登設計工程有限公司
專業室內空間規劃 工程整合顧問公司
官方網站 : www.asdinterior.net
任何裝修相關問題都歡迎私訊提問
謝謝大家




























































































