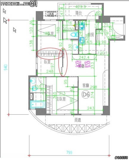
1.玄關處有一管道間
入口處只剩90CM.又做一個電器櫃
再去現場走幾趟
2.一般走道至少要90CM..但你的格局太小建議放大客廳
主臥退縮=80CM走道+6*6.2尺的床...長約200CM
所以前面大大建益的可參考...
若連床頭都不要打掉隔間牆...用一般的隔間
客廳的深度至少可再增加30-35CM
不然會跟餐廳的深度差太多
3.你的樑位圖都放上去了嗎
客餐廳沒樑恭喜....把柱子的圖也放上來吧
joesun wrote:
我不是專業的
1.玄關處有一管道間
入口處只剩90CM.又做一個電器櫃
再去現場走幾趟
2.一般走道至少要90CM..但你的格局太小建議放大客廳
主臥退縮=80CM走道+6*6.2尺的床...長約200CM
所以前面大大建益的可參考...
若連床頭都不要打掉隔間牆...用一般的隔間
客廳的深度至少可再增加30-35CM
不然會跟餐廳的深度差太多
3.你的樑位圖都放上去了嗎
客餐廳沒樑恭喜....把柱子的圖也放上來吧
J大您好:
我們不希望主臥太小,因為很多時間都會待在主臥...
你所說的主臥退縮,是不是就是前面大大說的,再把書房改成更衣間?
我們用的是輕隔間,厚度只有15cm
柱子的圖我晚點再補一張清楚的,我前面上傳圖的虛線部份其實就是樑柱
內文搜尋
X





























































































