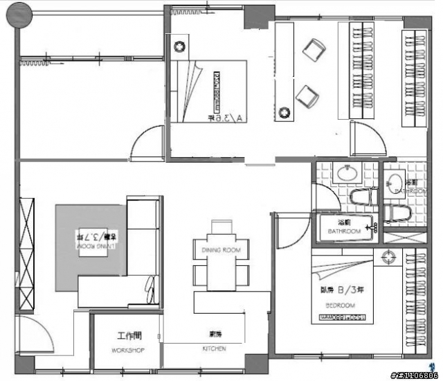
2、進門的那落地窗有點佔空間,因為橫拉兩片只能開一片,佔一片的空間,進門會覺得很擁擠吧
3、繞餐桌過去有點複雜浪費時間,拐來拐去的,依現況下去,應該把客廳那隔屏高櫃拿掉,餐桌轉向,讓出走道的空間,直線前進似乎比較好走
4、轉向後電器櫃就可以考慮轉向廚房面,內用比較好使用
5、客廳部份放電話的地方是在高櫃那嗎?一般是放近點比較好用,不然就要用子母機
6、客廳旁那間房間因為小也只能這樣放了
7、主臥確實不適合放更衣室,但主浴似乎不好用,太小了,感覺像客浴才對
8、廚房旁那間房間我也是認為床和衣櫃位置要對調,空間比較美,也比較有安全感才是
9、全室衣櫃建議全使用推拉門片,不要用開門,這樣不佔空間
以上給大大參考囉!

打算進門那一段陽台可以買個鞋櫃放就好
廚房的排氣
他有管線可以把抽油煙機的排氣直接接到室外
所以曬衣服應該不會影響
廚房真的太小
牆壁要不要打掉掙扎了很久
因為打掉了
地磚沒有一樣的可以補
必須要整個地轉全部重鋪
也有人擔心打掉
油煙會滿屋都是...
內文搜尋
X






























































































