
假日拜訪了很要好的大學同學家,同時也是他們的育兒新家!同學媽媽把老家二樓重新翻修給他們住,著實羨慕…有後盾真好!他們也跟我分享了翻修前後,差別非常大,一起開箱給大家看!
《原屋況》
先給大家看一下二樓的”老樣子”
房子是三層樓別墅,二樓有27坪,同學說兄弟姊妹長大搬離開家之後,老家二樓就荒廢成了倉庫,趁這次注入新血,又重新啟動變成養育第三代的地方,莫名有股代代傳承的感動!









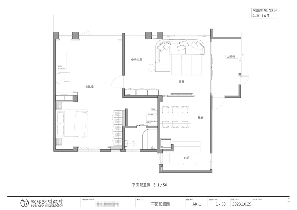
《平面配置與3D渲染圖》
聊到設計公司,同學說這也是滿妙的,因為他媽媽是醫美診所的常客,看到診所翻修後覺得很棒很好看,就從院長那裡拿到設計公司的電話。
這次重新翻修做了一房兩廳一廚一衛,因為要趕在小孩出生前完工還要散味道,設計公司也很積極追進度,從場勘、溝通設計需求、畫稿修稿到定稿,從討論到開工花了3個月。
同學媽媽說之前有自己統包翻修過房子的經驗,但覺得太累了,這次決定要交給專業的設計師來,真的很輕鬆,還可以預先看到家未來的樣子,設計費花得很值得!








《翻修開工》
舊裝潢全部拆除。


▼打除舊格局重新規劃隔間。


▼鋁窗更換成氣密窗。

▼泥作粉光。

詳細施工項目文章最後會整理給大家參考!


《養兒新家開箱》
同學老婆也很感性地說很幸運遇到好婆婆,不然現在要買一間新房子動輒千萬,也不可能買到27坪這麼大,更不用說扛房貸了…真的滿滿感恩的心!
客廳
翻修後完全不一樣了,整個氛圍、整個空間都活化了起來!!


▼很溫馨又很young的氛圍,讓我自己也覺得在這裡養兒是一種期待、一種嚮往。 同學說他老婆坐月子期間 ,在月子中心看到群組傳來的完工照,整個人心花怒放,迫不及待想搬進去。



餐廳
二樓配置了簡易流理台,也放了冰箱和餐桌,可以準備簡單的輕食、早餐,也方便沖洗奶瓶泡奶粉,當然正餐還是會到一樓大家一起吃,這樣才有三代同樂的感覺!


臥室
臥室是一整片大空間,以梳妝台區分兩個空間,外面可以當較為隱秘的起居室,裡面則是睡覺空間。


▼地板舖設Rococo洛可可地板,這是新式超耐磨地板,有防水靜音墊,未來寶寶會爬了就是最佳活動領域!

▼全部材料設計師都用低甲醛材料,同學說很感謝設計師的細心~油漆是使用得利健康居除甲醛乳膠漆,對大人、寶寶和環境都是友善的,聽同學媽媽說油漆在塗的時候幾乎沒有味道,很不錯。

▼全身鏡放衣櫃內,避免未來寶寶會爬會走碰撞到鏡子,大空間盡量淨空為主。

衛浴
主臥浴室簡約設計,比較特別是外面的小空間,設計師規劃成育嬰空間,因為嬰兒前期很常需要更換尿布及清洗,因此離水源越近會越方便,這區規劃了尿布台、收納櫃以及牆面掛鏡,洗完澡也可以在這裡吹頭髮,動線很方便。


同學心得:我們已經入住一陣子了,居家環境非常舒適完全不用適應,但還在適應新手爸媽的雞飛狗跳就是了…哈哈…
▼最後附上一張軟Q寶寶!

▼翻修資訊放這裡
施工項目有:
(1) 全部舊鋁窗更換成氣密窗
(2) 局部拆除舊格局重新規劃新隔間
(3) 天花板拆除換新
(4) 整間浴室翻新
(5) 新作木作櫃體
(6) 新作系統櫃
(7) 主臥鋪設洛可可地板
(8) 鋁框玻璃拉門工程
(9) 空調
(10) 油漆工程
(11) 全室細清
(12) 既有洞石地板打磨拋光
(13) 軟裝設計
設計公司資料和裝潢費用則放在商家資訊,留言回文就能看到!


很漂亮的裝修
























































































