

原本我是先陪朋友與瀚寶總監討論設計,後來剛好我家裡也要裝潢,就直接也請總監幫我規劃,而且很意外的是我家竟然得到 【🥈英國 London Design Awards 銀獎】

超有面子
再加上親朋好友來我家都說很漂亮,很想直接住下來
所以我決定要跟大家分享,因為是首PO,我打的可能不盡詳細還請見諒嘿

風格:現代北歐風
屋齡:12年
坪數:40坪
格局:4房2廳2衛
主要用的建材:系統櫃、藝術漆、鐵件、玻璃屏風、超耐磨木地板、磁磚、洞洞板
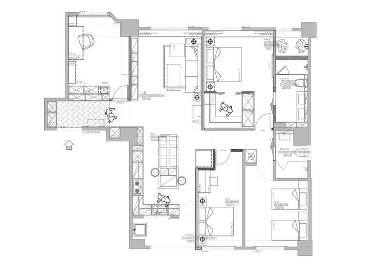
【先附上平面配置圖】

【客廳】



▸我們期望
希望整體空間配色能保持明亮,喜歡的馬卡龍色系也需融入其中,保持空間寬敞

▸設計重點
1.馬卡龍粉色出風口
將馬卡龍色系中的粉色融入到出風口的設計中,使其成為空間的亮點,增添了趣味性和獨特性。
2.導圓沙發背牆
圓弧形背牆柔化了空間的硬朗線條,搭配藍色皮質沙發,既提升了質感,又注入了高雅與舒適感,使空間品質與觸感得到全面提升。
3.黑色軌道燈的運用
黑色軌道燈不僅提供了光線,同時也可起到裝飾作用,讓單一色天花板有延伸感,增添空間的層次和視覺效果。
【玄關】


▸我們期望
希望把喜愛的馬卡龍相關顏色,拚成玄關落塵區的地磚,想要一回家就看到喜愛的地磚

▸設計重點
1. 色彩選擇
選用馬卡龍粉、藍、綠三種柔和且充滿活力的顏色,將這些色彩拼接成玄關落塵區的地磚,營造出溫馨且歡快的氛圍。
2. 視覺效果
每磚每瓦皆透過設計擺放,巧妙運用色彩的搭配,形成獨特視覺效果,每次回家都能享受一場視覺盛宴。
【餐廳】

▸我們期望
常行走的動線想保有寬敞無阻礙的過道,也想將喜愛的馬卡龍色系融入各角落

▸設計重點
1.馬卡龍色系延續
餐邊櫃上方延續馬卡龍色系的柔和、明亮和飽和色彩,讓活潑的氛圍貫穿整個空間。
2.精心挑選家具配飾
選擇與馬卡龍色系相襯的家具和配飾,注重舒適度和功能性,確保用餐區既能滿足人們用餐的需求,又能讓他們感受到舒適和放鬆。
3.溫馨氛圍的照明設計
運用溫暖柔和的照明設計,營造出溫馨浪漫的用餐環境,使家人們在此享受美食的同時感受到家的溫暖。
【主臥】



▸我們期望
希望持續延續馬卡龍配色,呈現在主臥(雙手合十祈禱

▸設計重點
1.柔和色彩營造舒適氛圍
床頭牆面選用屋主喜愛的馬卡龍粉,不僅帶來視覺上的愉悅感,還營造出輕鬆、舒適的氛圍。粉色能減少壓力,帶來平靜感,使空間更加溫馨。
2.圓弧梁柱化解風水問題
主臥設計中,圓弧形梁柱不僅化解風水問題,還營造舒適的睡眠環境。圓弧設計能緩和銳利邊角帶來的不良氣場,讓空間更和諧自然。
3.更衣區設計
部分區域使用玻璃隔開,設計出獨立的更衣間,增加功能性並保持視覺通透感。這樣的設計實用且時尚,讓主臥空間更精緻高雅。合理的儲物設計保持更衣區整潔有序,提升使用體驗。
【衛浴】


(附上2隻小犬在浴缸玩水影片,小孩的同學羨慕我們家裡有浴缸,也來湊一咖
)▸我們期望
我們本身很喜歡泡澡,小孩又愛玩水,但又不想放浴缸太佔位置,感覺這些需求就不可能,但瀚寶總監還是幫我們完成了,覺得不可思議

▸設計重點
1.馬卡龍色塊牆
牆面採用不規則小塊瓷磚點綴,以馬卡龍色調延續繽紛風格,這些色彩不僅帶來視覺享受,還能提升整體空間的活力與愉悅感。
2.小浴缸的巧妙設計
為了不放浴缸佔據過多空間,我們選擇了直接砌牆圍成浴缸,既能滿足屋主泡澡的需求,又能讓小孩盡情玩水,完美契合屋主的實用性需求。
▸▸心得感想
我覺得馬卡龍這種顏色可以減壓,也讓空間感覺更溫暖。這些改變不僅讓整體空間更貼切我的夢想家,每天回家都感覺特別舒適和放鬆,感謝瀚寶總監給我們家獨一無二的設計

以下是瀚寶團隊採訪我的影片,想透過我自己的力量,支持瀚寶室內設計公司(不知道能不能放,不能放我再刪除)




















































































