
我爸媽年過花甲,也是時候安排退休宅,但一直無法下定決心,很擔心花了錢卻裝潢不夠完美,畢竟這應該是人生最後一次動裝潢。
在這次連假,拜訪了舅舅舅媽重新裝潢的退休宅,一踏入大門,歲月靜好的祥和居家感,讓我爸媽著實羨慕不已,尤其是可以容納一家子的五房大空間,過年過節小孩回來有自己的房間,共享天倫之樂,應該是最理想的退休生活吧!
我們和舅舅買在同一個社區,舅舅一家的翻新很有參考價值!所以我也詳細記錄,一起分享給大家。
◈重新裝潢的動機
舅舅是傳統產業主管,過幾年準備退休了,想把老房重新整理當成退休宅,主要是這間房子有5房,可以讓全家人都住在一起,周圍生活機能也很完善。
◈如何找到設計公司
舅舅:這完全是緣分!!打算整理房子後,一直有在關注各種裝潢資源,網路的、實體的都有,直到有天和你舅媽約會去吃早午餐,覺得店家裝潢非常好看,完全就是我們想要的風格,於是冒昧詢問店長能不能給我們設計公司的電話。
聯繫見面後,設計師剛好有許多老屋翻新的經驗,對於他的設計作品有很多獨到見解,但又不會以自我設計為出發點,會以屋主的使用習慣做配置並加強動線規劃,讓我們覺得對客戶很負責,當天也對我們家老屋翻新提出不少想法,獲得我們的信任,回家考慮幾天就簽約了。
◈原屋況
前屋主是把房子出租,也有在整理,整體屋況不差,但離質感退休生活…有段距離就是。
▻室內38坪,含廁所、陽台44坪
▻5房/2廳/3衛/2陽台
▻屋齡33年










◈裝修需求
格局基本上沒有大變動,主要是處理老屋常見問題:漏水、門窗變形毀損、牆壁剝落等等,還有調整廚房空間,原本舊廚房很封閉。
1)處理兩面外牆會漏水的問題
2)餐廳隔牆拆除,打造開放式廚房
3)廚房鋪花磚,增加視覺豐富度,也藉此界定客廳、廚房各空間區塊
4)全室鋪設SPC超耐磨地板(但拆除時發現室內地磚大多數空鼓,設計師建議改貼地磚,避免日後地磚隆起造成SPC破壞,所以只好妥協貼地磚)
5)充足的收納空間
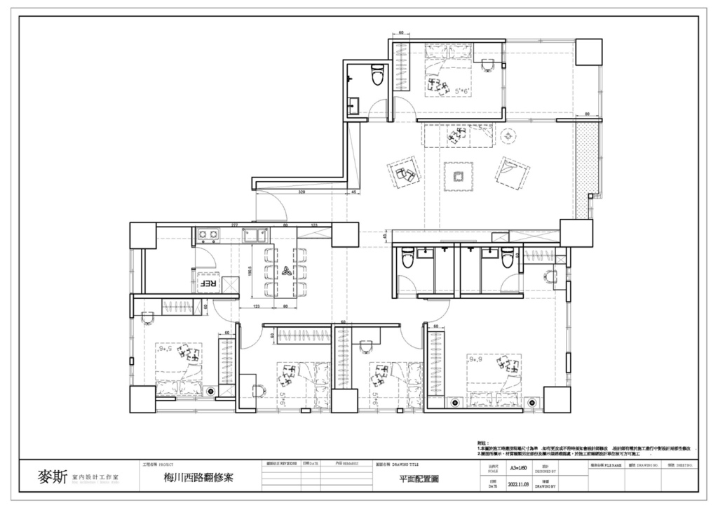
▼平面圖

▼3D圖











◈施工過程
舅舅他們偶爾會到施工現場看看,大部分時間還是交給設計師監工,設計師會主動告知工程進度,會拍照記錄在LINE相簿,有問題也會即時回報,像是地板不適合鋪SPC地板,立刻通知並提供解決方法,讓人很放心交給他。
▼室內牆壁打到見底,重新粉光上防水粉,再將室內與室外塗上防水材料解決漏水問題。








▼廁所翻新,打到見紅磚,重做防水層。


▼鋪磁磚。繽紛的磁磚調平器,看過去莫名聯想到攀岩牆!


▼廚房花磚。空間層次感一下子就跑出來了!設計師使用黑白花磚,整體不花俏,特別有質感,並與客廳形成分區,搭配得非常好!

▼牽管線&全室管線更換。

▼平釘天花板+造型弧形天花板。

▼油漆工程。

▼安裝櫃體,以系統櫃為主。


▼安裝冷氣室外機架&曬衣桿。陽台狀況良好並無拆除重建,僅牆面油漆粉刷。


◈完工美圖分享(混入一點生活照XD)
【客廳】
很舒服的中性色調搭配溫暖淺木色,放大空間感,整體氛圍祥和舒適,是會讓人想待在家一整天的退休宅!舅舅說他們在挑選家具時,也會隨時與設計師討論,請教專業建議選擇相近色,保持裝潢風格一致。

▼弧形天花板+燈帶。老房子樓高不高,但融入設計師的弧形巧思,增加視覺層次,反而不會留意到高度,也讓客廳空間更有動態感,燈帶散發和煦微光,使居家氛圍更加柔和。

▼窗邊臥榻,可以伴著陽光閱讀或小憩(據舅舅說法,是為一圓我舅媽瓊瑤女主夢,穿著優雅洋裝,半躺臥榻讀閒書,舅媽也是挺浪漫的)臥榻下方則是滿滿的收納空間,相當實用。

▼懸浮式電視櫃,收納充足且不厚重,營造視覺輕盈感,掃地機器人也能來去自如。


【玄關】
7口之家鞋量可觀,設計師規劃窄型收納櫃,鞋子收納採斜放,不佔據玄關空間,亦能達成收納效果。

▼底部放置常用鞋,開放櫃放置出入常用物品。設計師將功能規劃得很清楚,這點讓舅舅他們非常喜歡,生活起來也更方便!

【廚房】
▼舅舅家雖然不經常下廚,但會自己做些輕食,廚房標配大水槽、烘碗機、電器櫃、不鏽鋼抽風機,一切充滿了儀式感!

▼半島吧台是流理臺面,也是家人一起吃早餐聊天的凝聚點。

▼防濺板色系清新,寧靜藍搭配木紋幾何斜切設計,幫廚房增添一抹亮點。

▼廚房黑白花磚,除了充滿設計感,防水、不易染色的優點也很適合廚房空間。成果美麗又細膩,和白色櫃面碰撞出不一樣的美感!

▼使用上空間充足,所有物品都有自己適合的家,舅媽也說美到讓人不忍心弄髒它~右邊是小吧台,舅舅一早有喝咖啡的習慣,所以設計師規劃小檯面,可以放置咖啡機、熱水器等等。

【房間】
5個房間(1主臥+4次臥),每個房間配置類似,但有些許不一樣的設計點綴(設計師利用櫃體變化以及使用不同主題色油漆牆面來達成。)
▻主臥
粉藕色搭配淺灰色裝潢與家飾,氛圍感典雅、沉靜又不失暖度,有股讓人一走進去就靜下來的魔力。

▼樑角空間一側是書桌,一側配置檯面可當梳妝台,皆能滿足舅舅與舅媽的需求。


▼衣櫃及收納櫃以開放或封閉混合,製造視覺層次感,不會有全封閉櫃門的壓迫感。

▼主臥衛浴。白色系磁磚有放大效果,讓浴室看起來更加寬敞。

▻其他4個次臥
設計師利用顏色巧思,選用舒適淡雅的色系,幫房間做出小變化,有冷調、有暖調,讓舅舅一家每個人皆能心有所屬的房間,每一間的舒適感彷彿走進民宿,並配置大衣櫃、多收納。





▼書桌圓弧造型,讓空間感更活潑、不生硬。


▼房門也是一亮點,像流水般的曲線凹痕,空間似乎活起來了!




▻其他2間衛浴。

開箱完畢!我也跟著一起深入了解了舅舅舅媽的退休宅,人生下半場,有如此美好的家,真的圓滿了!也讓我爸媽重新燃起打造退休宅的念頭,目前已經聯絡同一位設計師溝通想法,迫不急待想要動工了!
舅舅說很感謝設計師不遺餘力的用心,想盡辦法達成大家的需求,給我們一個完美的新家。
也提到,居住到現在快一年,家人有聚會交流的空間,也有自己的私人天地,每天回家都能感受到一家人聚在一起的溫暖,很舒服、很自在,現在回頭看,當初下定決心重新整理房子真的是非常棒的決定!
設計公司資訊放在商家資訊,有需要的話回文就可以看到囉




























































































