【開箱‧分享】2房小閣樓
各位先進與朋友,您們好~
馬不停蹄的奔波,總算年底了,想陸續分享今年的完工案例,當作是回顧與紀錄,
由衷感謝業主的支持與施工團隊的堅持,
讓我們可以一直在空間設計的領域中不斷前進。
地點:新北 施工面積:18坪(2層)
屋主希望能擁有2房的空間機能又不壓迫,空間簡單明亮大方...等。如何將文字想像轉換成空間執行?
■成屋現況照片及實地丈量

4米2的挑高空間,實際坪數大約10坪,附有拋光地磚及衛浴設備。應該算建商的簡配。如果是附贈空調外機跟廚具的應該就算標配吧。建商送空調外機的好處就是建築外觀整齊美觀。
缺點就是品牌被綁死,例如外機是國際牌,內機就不能用大金。除非連外機都換掉。
(建商附贈甚麼很重要!因為會影響您裝修可以省多少錢!會再分享預售屋客變的經驗)
■空間規劃建議

想擁有 2房 2廳 1衛 1廚 的空間機能,必須往上發展。開口位置是影響開闊空間感的主因。1F已經有原建商附贈的拋光石英磚,建議保留。前有廁所後有廚房,整間鋪設木地板的清潔保養不容易。這幾年開始引進具防水特性的SPC石塑木地板,但一想到預算,就覺得拋光磚也很美好。
■3D示意圖1

如果說平面圖是空間感的根本,3D圖就是使空間擁有個性的表現法。
空間如何不壓迫?如何簡單明亮大方?
讓視野穿透是一種最直接的方法,空間感的尺度很大一部分取決於視線的距離。
而明亮大方,我們選擇一種撞色的方式,使空間配色有反差,有明有暗,亮的會感覺更亮。
■3D示意圖2
至於現代建築大師Mies的經典名言「Less is More」。簡單,其實最難。考慮實際的機能與需求之後,我們把裝飾轉化到必須存在的工法、材料、分割、細部當中。減少為了裝飾而裝飾。
- - -
我們是先畫3D再報價,避免溝通上的認知落差,另一方面3D是施工依據,也能讓施工團隊更了解要做到甚麼質感。
一張平面就報價、或是一份文字描述的報價單就簽約,實在太常有爭議,
因為只有平面圖與文字無法明確的使人理解工程到底要做到甚麼程度?
室內裝修是成果論,美觀也很視覺,從2D轉換到3D有太多變數...
- - -
■樓梯很重要

為了維持樓梯踏板側邊的俐落感與漂浮感,側板必須雷切,踏板處用方管點焊當支撐。
■天花板內高度很重要

天花角料約3x3.3cm,矽酸鈣板0.6cm,還要配管線及抓水平,感謝LED薄型崁燈,讓天花板完成實際厚度只需5cm。
以前留10cm,還會被水電師傅罵,只能裝小崁燈,其他燈沒辦法裝是要插鼻孔喔?
專業的團隊會記得在配管線處標註記號,預防萬一。
■長向剖面圖1

3D圖是施工依據,還是得轉化成剖立面圖才能實際執行。剖到2層樓就要放2層的平面。(後面的圖為了節省版面省略)連家具的實際尺寸最好都要表現進去,萬一完成才發現放不下就糗了。
■客廳

第一層的樓梯沒有扶手,在樓梯轉折處用金屬框內襯擴張網噴白色漆。
只有照片右邊的無框畫是特別訂製的。其它的都是現品。
■長向剖面圖2

題外話,在選擇電爐的時候,會建議以IH爐取代電陶爐,電陶爐在使用後,黑色玻璃面還有餘溫,IH爐則在使用上較安全,尤其家有幼兒與毛小孩的時候。
■客廳1

櫃子下方加燈,即使拋光磚很亮,現在的LED鋁燈條也不會反射燈泡顆粒。
■廚房

■短向剖面圖

■客廳2

格子櫃在現場調整過尺寸。調整成比較實用的尺寸。
■餐廳

白牆掛畫、窗邊擺植栽。很簡單的道理,要配的好看不容易。
PS.英國設計師 Tom Dixon 的黑色鏡面摩卡壺+杯子很加分。
■臥室B

2F鋪設的就是SPC塑木地板,寬版、有導角,所以較擬真。
木頭樑內是管線,不是多餘的裝飾,管線內的三角空間就裝顆燈。

天花預留軌道,日後可增設拉門或拉簾。
■廊道通往臥室B

擴張網當欄杆,為了讓邊框更細緻,每一片擴張網的邊都是現場電焊。
■臥房B兼書房

可收納桌板,桌板的固定端通常在長邊,但我們轉了方向,可利用現場既有的結構當作位。

配合1F大門的高度,這一空間的尺度較適合當小孩房。
完工後將攝影師拍攝照片跟竣工圖一併提供給屋主。
- - -
關於設計師畫不畫圖的問題,可以用一個例子討論:
聽某個屋主說,他碰到過一位「資深設計師老闆」,給他施工是不畫圖也不給圖的,因為每個案子都做同樣的風格、用同樣的方式,所以工班已經都知道如何舉一反三了。
房地產文化將住宅外觀決定權交給建商,不論建案好壞都沒有屋主的性格,這張照片的A櫃+那張照片的B牆,裝修東拼西湊,不是混搭風,是混亂風...
畫圖、現場監工很重要也是必要,那是一種堅持美好事物與負責任的態度,我們負責把關。
所以,我們很感謝這次的屋主,她很明確的瞭解自己的需求,也給我們很大的發揮空間,能夠在有限的預算、有限的時間內完成,從鐵工、木工、水電、燈具、空調、廚具、家具、家飾及攝影...
畢竟人在空間中流動,居所應是一個整體,而不是電影佈景。
- - -
後記,
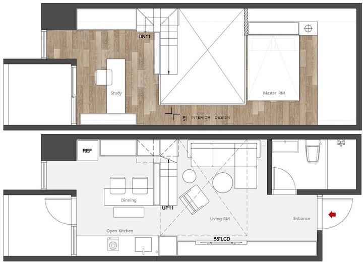
有人發現一開始彩色的平面圖跟裝修完成的照片不一樣了嗎?
沒錯,後來依需求對調了。彩色平面圖是提案時的圖面,施工前修正了。

感謝看到最後的澎優,謝謝您很用心看到我們的用心。同場加映 3D的 B方案。


是的,您沒看錯,我們一開始就是提供 2個方案的平面及3D 讓屋主挑選。
電視牆換了位置,材料對比風格更加強烈。
我們的效率來自於我們自產自銷一條龍,(這個比喻雖然有點直白,但很真實)
設計討論是設計師去的、3D跟施工圖是設計師自己畫的,施工團隊是設計師發包的、現場監工也是設計師自己跑的,家具家飾是設計師買的、只有完工攝影是專業攝影師拍的。
對我們來說,認真的對待每一個裝修作品,是絕對與必須的,因為,那是陪伴您人生重要時光的居所。
敬請期待下次分享。
2019.12.09.十引.





























































































