狹長型格局+完全無光線 好頭痛


狹長型格局+完全無光線  好頭痛

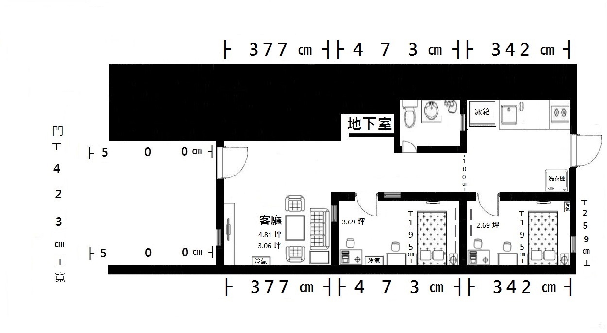
想請問各位

因為是30幾年的老房子 格局設計的很奇怪

正為了客廳擺設而苦惱 原本電視跟沙發是放直向
現在想要移成橫向但又會有點卡到大門

室內大約有20幾坪 但因為格局的關係變得非常狹隘
因為還有小小的前後院,左右兩邊也都緊鄰房子,導致光線完全照不進來

不知道有沒有什麼辦法能改變空間 變得較舒服 謝謝大家哦
2016-09-25 21:52 發佈
你有沒有感覺你平面圖,門的方向畫的好奇怪
還有你在01搜尋 長型房屋 可以找到幾百個案例
其實圖的資訊有點少

那種走道很浪費空間

有預算的話建議先整理隔間
我家也是這樣長型的格局,我也很想知道還能有什麼變化~
我家還沒裝修前也是類似格局,今年後巷因為污水下水道施工
所以整個隔間打掉重來,設計師為了通風問題,建議安裝全熱交換器
解決了室內空氣不良的問題。

一樓住辦用。權狀32坪。
要有突破性的規劃,大概只能先打通了

原有格局本來限制就較多

當然預算一定會增加,再跟設計師討論看看吧~~
老實說
我看你的圖也覺得
好頭痛~
想提建議都不知該從何說起...

yo痴漢,耍白癡的人永遠教不會~
感謝各位的回答
因為是自己用591格局圖大概畫的 不太會用
所以門的方向有些是錯誤的

好像很少看到這種門開在最前面 長長一條通道最後的格局
會再參考大家的意見

wendy21933 wrote:
想請問各位 因...(恕刪)



我覺得狹長屋就是只能這樣了吧


內文搜尋
X
評分
評分
複製連結
Mobile01提醒您
您目前瀏覽的是行動版網頁
是否切換到電腦版網頁呢?