討論群組
登入/註冊
討論區
小惡魔市集
悅遊日本
首頁
手機
返回
手機
分區首頁
最新文章
熱門文章
消費經驗
綜合討論
Android
Acer
Asus
BlackBerry
Google
GSmart
HTC
Huawei
InFocus
LG
MOTOROLA
Nokia
OPPO
POCO
Realme
SAMSUNG
Sharp
Sony/SE
SUGAR
vivo
小米手機
中興
酷派
聯想
Android其他品牌
Android軟體分享
BlackBerry
BlackBerry
BlackBerry軟體分享
Symbian
NOKIA
Samsung
SonyEricsson
Symbian軟體分享
Symbian其他品牌
Windows Phone
Acer
Asus
Garmin-Asus
GSmart
HP
HTC
LG
Nokia
SAMSUNG
Sony / SE
TOSHIBA
Windows Phone軟體分享
Windows Phone其他品牌
Feature Phone
Asus
BenQ
LG
MOTOROLA
NOKIA
SAMSUNG
Sony Ericsson
傳統手機其他品牌
其他作業系統
日本手機
其他智慧型手機
其他作業系統
資費與週邊
電信業者與資費
手機週邊與穿戴裝置
手機消費經驗分享
相機
返回
相機
分區首頁
最新文章
熱門文章
消費經驗
綜合討論
消費型數位相機
Canon
Casio
Fujifilm
Kodak
Leica
Nikon
Olympus
Panasonic
Pentax
Ricoh
Samsung
Sigma
Sony
消費型相機綜合
可換鏡頭數位相機
Canon
Fujifilm
Leica
Nikon
Olympus
Panasonic
Pentax
Samsung
Samyang
Sigma
Sony
Tamron
Tokina
Zeiss
可換鏡頭相機綜合
運動、空拍、攝影機
Canon
DJI
Garmin
GoPro
Insta360
Panasonic
Sony
影片後製與剪輯
運動、空拍、攝影機綜合
影像器材周邊
傳統與特殊相機
攝影觀念及技術
影像處理與後製
相機消費經驗分享
筆電
返回
筆電
分區首頁
最新文章
熱門文章
消費經驗
綜合討論
台灣品牌
Acer
Asus
BenQ
CJSCOPE
CLEVO
GIGABYTE
MSI
亞洲品牌
Fujitsu
Lenovo
LG
Panasonic
Sony
Toshiba
歐美品牌
DELL
HP
Razer
Surface
Android平板電腦
Windows平板電腦
其他攜帶型電腦
筆電消費經驗分享
電腦
返回
電腦
分區首頁
最新文章
熱門文章
綜合討論
核心組件
中央處理器
主機板
記憶體
儲存裝置
硬碟
SSD固態硬碟
外接式硬碟盒
隨身碟與錄音筆
光碟燒錄
網路儲存裝置
其他儲存
顯示設備
顯示卡
電腦螢幕
電視卡盒
電腦週邊
其他電腦週邊
鍵盤與手寫板
滑鼠與鍵鼠組
噴墨印表機
雷射印表機
音效裝置
機殼散熱
機殼
電源供應器
散熱器
其他電源設備
網路產品
基地台與分享器
網路卡
網路視訊與電話
網站與網頁技術
其他網路設備與技術
電腦軟體
作業系統
電腦安全
影像處理
影片播放與轉檔
文書處理
其他應用軟體
品牌電腦與準系統
自組電腦分享
其他電腦綜合討論
電腦組裝訪價消費分享
Google服務分享
AI人工智慧
蘋果
返回
蘋果
分區首頁
最新文章
熱門文章
消費經驗
綜合討論
蘋果軟體綜合
蘋果軟體
iPad 軟體
iPhone 軟體
iPad
iPhone
iPod
iOS Jailbreak
Apple TV
Apple Watch
Apple Music
Mac桌上型電腦
Mac筆記型電腦
蘋果週邊綜合
蘋果裝置消費經驗分享
影音
返回
影音
分區首頁
最新文章
熱門文章
消費經驗
綜合討論
行動影音
高畫質視界
發燒音響
小惡魔影城
音樂鑑賞室
其他影音裝置
小惡魔電視台
影音消費經驗分享
汽車
返回
汽車
分區首頁
最新文章
熱門文章
消費經驗
綜合討論
德國車系
德國車系綜合
Audi
BMW
Mercedes Benz
Opel
Porsche
Volkswagen
Skoda
英國車系
英國車系綜合
Aston Martin
Bentley
Jaguar
Land Rover
Lotus
McLaren
Mini
MG
法國車系
法國車系綜合
Peugeot
瑞典車系
Saab
Volvo
義大利車系
義大利車系綜合
Alfa Romeo
Ferrari
Lamborghini
Maserati
美國車系
美國車系綜合
Ford
GM車系
Tesla
日本車系
日本車系綜合
Honda
INFINITI
LEXUS
Mazda
Mitsubishi
Nissan
Subaru
Suzuki
Toyota
韓國車系
韓國車系綜合
Hyundai
KIA
台灣車系
LUXGEN
中國車系
tobe
中國車系綜合
汽車行車記錄器
汽車行車記錄器綜合
DoD
GARMIN
Mio
PAPAGO
汽車GPS
GARMIN
HOLUX
Mio
PAPAGO
Panasonic
TOMTOM
樂客導航王
其他品牌
中國品牌
消費經驗分享
汽車零組件
輪圈與輪胎
汽車話題
動力研究室
WRC / F1 賽事討論
汽機車七嘴八舌
汽車消費經驗分享
ETC專區
汽車遊記分享
購車菜單
機車
返回
機車
分區首頁
最新文章
熱門文章
消費經驗
綜合討論
輕型與重型機車
輕型與重型機車綜合
AEON
HARTFORD
HONDA
KYMCO
PGO
SUZUKI
SYM
YAMAHA
VESPA
大型重型機車
大型重型機車綜合
AEON
BMW
DUCATI
HARLEY-DAVIDSON
HONDA
KAWASAKI
KTM
KYMCO
SUZUKI
SYM
TRIUMPH
VESPA
YAMAHA
電動機車
電動機車綜合
Aeonmotor
eMOVING
Gogoro
KYMCO
YAMAHA
機車行車記錄器
機車行車記錄器綜合
Mio
SJCAM
雲創
歐視達
響尾蛇
機車GPS
機車GPS綜合
GARMIN
Mio
PAPAGO
人身安全部品
機車活動區
機車遊記分享
機車賽事
機車消費經驗分享
單車
返回
單車
分區首頁
最新文章
熱門文章
消費經驗
綜合討論
單車GPS
GARMIN
其他品牌
台北市區車隊
台北幸福山港
大稻之行團
Taipei01小惡魔車隊
臺北左岸夜騎團
南台北城市單車俱樂部
林北愛騎團
台北非假日順騎自然團
大文山樂騎團
鮪魚肚TORO-BIKE車隊
大安森林團
元氣家族
疾輪百客
正妹陪騎團
Friends 20
紅蜻蜓車隊
中興勤瘦幫
NHB 內湖幫
K.B.I.車隊
北部地區車隊
汐萬百客
土城愛騎團
板橋騎兵團
大新竹竹蜻蜓車隊
大桃園小惡魔
北臺灣OFFROAD團
永福IN幫幫
基隆鳶飛百客車隊
新莊星光團
新竹小熊單車團
林口鄉自由車委員會
樹林極樹
大摺無雙
悠遊約騎團
淡水恐龍團
藍鵲家族
兩鐵家族
大騎士單車俱樂部
快樂腳
板橋翹孤輪
比基尼單車隊
熟男熟女牽車團
夜八里輕騎團
Ni Ni ride to great
南勢角迷路團
新北市樹鶯區鷹速車隊
中部地區車隊
熱血自轉車部
彰化星光八卦團
苗栗山城單車俱樂部
台中真享受車隊
大南投01惡魔團
苑裡海山假日逍遙團
雲遊林間
台中優遊團
悠遊騎跡輕鬆團
台中樂活車隊
漂泊者車隊
海放車隊
TCSM台中慢慢騎
台中夜奔
台中雅騎士
雲林塔可單車隊
中台灣Offroad團
南部地區車隊
高雄01小惡魔車團
大台南01惡魔團
嘉義諸羅佰客
台南星光團
北高貓頭鷹團
笨港車隊
沐風團
遊戲兔子團
屏東肉腳團
台南逍遙團
嘉義搖擺兵團
H.H.E自由車隊
夢團
光夜團
南台灣OFFROAD團
北永康愛騎團
海外地區車隊
大陸華東ABC車隊
舊金山灣區單車行
東莞貓頭鷹鐵馬隊
登山車
公路車
單速車
小徑與摺疊車
單車其他車種
自行車活動與賽事
自行車週邊與保養改裝
遊記與路線分享區
自行車GPS航跡分享
單車消費經驗分享
遊戲
返回
遊戲
分區首頁
最新文章
熱門文章
消費經驗
綜合討論
Sony PlayStation
PS5 / PS4
PSP
PS VITA
Microsoft Xbox
任天堂
DS
Switch 2/Switch
Wii
Blizzard
魔獸世界
暗黑破壞神
星海爭霸
爐石戰記
暴雪英霸
鬥陣特攻
EA
戰地風雲
手機遊戲
Android遊戲
iOS遊戲
線上遊戲
線上遊戲綜合
英雄聯盟
戰車世界
魔物獵人
電腦遊戲
電腦遊戲掌機
雲端遊戲
NVIDIA GeForce Now
Hami 雲端遊戲
friDay 雲遊戲
Microsoft xCloud
Sony PlayStation Now
網頁遊戲
其他遊戲
電競週邊
虛擬實境裝置
封測帳號發送
遊戲消費經驗分享
居家
返回
居家
分區首頁
最新文章
熱門文章
消費經驗
綜合討論
北部房產
基隆市
台北市
新北市
桃園市
新竹市
新竹縣
苗栗縣
中部房產
台中市
彰化縣
南投縣
雲林縣
嘉義市
嘉義縣
南部房產
台南市
高雄市
屏東縣
東部房產
台東縣
花蓮縣
宜蘭縣
澎湖縣
金門縣
連江縣
房地產資訊
居家修繕
居家風水
家用電器
清掃家電
廚房家電
洗濯家電
空調家電
生活家電
空間設計與裝潢
庭院園藝樂
木工DIY
管委鄰里大小事
營造與建築
北部房產買賣
基隆市房產買賣
台北市房產買賣
新北市房產買賣
桃園市房產買賣
新竹市房產買賣
新竹縣房產買賣
苗栗縣房產買賣
中部房產買賣
台中市房產買賣
彰化縣房產買賣
南投縣房產買賣
雲林縣房產買賣
嘉義市房產買賣
嘉義縣房產買賣
南部房產買賣
台南市房產買賣
高雄市房產買賣
屏東縣房產買賣
東部與外島房產買賣
台東縣房產買賣
花蓮縣房產買賣
宜蘭縣房產買賣
澎湖縣房產買賣
金門縣房產買賣
連江縣房產買賣
北部房產租賃
基隆市房產租賃
台北市房產租賃
新北市房產租賃
桃園市房產租賃
新竹市房產租賃
新竹縣房產租賃
苗栗縣房產租賃
中部房產租賃
台中市房產租賃
彰化縣房產租賃
南投縣房產租賃
雲林縣房產租賃
嘉義市房產租賃
嘉義縣房產租賃
南部房產租賃
台南市房產租賃
高雄市房產租賃
屏東縣房產租賃
東部與外島房產租賃
台東縣房產租賃/a>
花蓮縣房產租賃
宜蘭縣房產租賃
澎湖縣房產租賃
金門縣房產租賃
連江縣房產租賃
居家房事消費經驗分享
親子
返回
親子
分區首頁
最新文章
熱門文章
綜合討論
彩妝保養
時尚流行
星座占卜
育兒話題
女人心事
孕前產後
嬰幼食品
童書玩具
寶貝健康
婚姻感情
親子消費經驗分享
時尚
返回
時尚
分區首頁
最新文章
熱門文章
消費經驗
綜合討論
典藏腕時計
腕錶綜合討論
Audemars Piguet
Breitling
Cartier
Casio
Citizen
GARMIN
IWC
Longines
Mido
Omega
Oris
Panerai
Patek Philippe
Rolex
Seiko
Zenith
Tissot
帽子與眼鏡
外套與上衣
褲款大搜查
鞋靴樂收藏
包包大集合
飾品與配件
造型與保養
時尚流行綜合討論
時尚消費經驗分享
運動
返回
運動
分區首頁
最新文章
熱門文章
消費經驗
綜合討論
球類運動
籃球
棒壘球
足球
網球
羽球
高爾夫球
桌球
慢跑
游泳
潛水
鐵人三項
健身重訓
衝浪
滑雪
運動綜合
運動型穿戴裝置
運動健身消費經驗分享
戶外
返回
戶外
分區首頁
最新文章
熱門文章
綜合討論
登山與健行
享受釣遊樂
露營野炊樂
手電筒與照明
戶外手持GPS裝置
其他戶外活動
生活
返回
生活
分區首頁
最新文章
熱門文章
綜合討論
遙控與模型
逸品博覽會
動物與寵物
健康與養生
品酩享微醺
漫畫與動畫
閱讀與創作
電子閱讀趣
料理與食譜
就愛咖啡香
品茗賞壺趣
法律新觀點
惡魔島
英雄村
旅遊
返回
旅遊
分區首頁
最新文章
熱門文章
綜合討論
北部地區
基隆市
台北市
新北市
桃園市
新竹市
新竹縣
苗栗縣
中部地區
台中市
彰化縣
南投縣
雲林縣
嘉義市
嘉義縣
南部地區
台南市
高雄市
屏東縣
東部與外島
台東縣
花蓮縣
宜蘭縣
澎湖縣
金門縣
連江縣
五大洲
中國港澳
東北亞
東南亞
紐澳
歐洲
美洲
南亞
西亞
非洲
航空翱翔
交通運輸
租車經驗
電信漫遊
住宿訂房
其他討論
理財
返回
理財
分區首頁
最新文章
綜合討論
國內投資
股票 / ETF
基金
期貨 / 選擇權 / 權證
海外投資
美股
陸股 / 港股
匯率 / 虛擬貨幣
金屬 / 原物料
其他
信用卡與消費
人身保險
產物保險
行動支付
生活理財
投資理財綜合
閒聊
返回
閒聊
分區首頁
最新文章
綜合討論
投資與理財
閒聊與趣味
兩性與感情
軍事迷基地
職場甘苦談
創業夢想家
時事
返回
時事
分區首頁
最新文章
綜合討論
台灣新聞
國際新聞
兩岸新聞
COVID-19專區
新聞台
精選文章
YouTube
福利社文章
下載 APP
搜尋
搜尋
首頁
居家
空間設計與裝潢
好像很少看到一樓加車庫的裝潢!?
前往頁尾
5434
0
回覆
收藏
引言
回報
推薦
分享
只看樓主
訂閱文章
內文搜尋
文章分享
golonglife
golonglife
個人積分:28分
文章編號:61779290
28分
樓主
2016-09-25 14:33
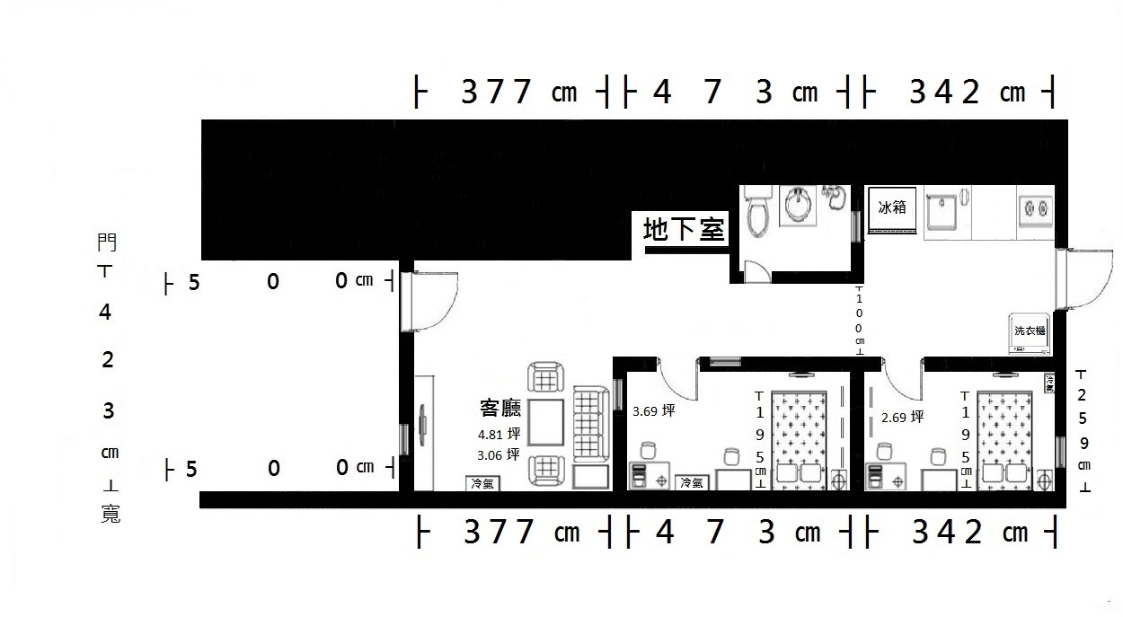
小弟最近想裝潢房子~
剛好是5樓老公寓的1樓
想把門口弄個鐵捲門
好像很少看到大家這麼做
有這樣設計的可以分享嗎
謝謝
2016-09-25 14:33 發佈
文章關鍵字
裝潢
車庫
5434
0
回覆
收藏
引言
回報
推薦
分享
只看樓主
訂閱文章
內文搜尋
文章分享
貪財是種美德
貪財是種美德
個人積分:14分
文章編號:61805977
14分
2樓
2016-09-27 16:42
golonglife wrote:
小弟最近想裝潢房子...(恕刪)
參考參考
0
評分
取消
確定
引言
留言
回報
連結
只看此人
文章分享
0/100
惡魔使者
惡魔使者
個人積分:22分
文章編號:61808428
22分
3樓
2016-09-27 20:23
golonglife wrote:
小弟最近想裝潢房子...(恕刪)
這我家的車庫....
這照片是未完工時 如需要清楚再拍給你看
0
評分
取消
確定
引言
留言
回報
連結
只看此人
文章分享
0/100
golonglife
golonglife
個人積分:28分
文章編號:61808653
28分
樓主
2016-09-27 20:43
謝謝兩位大大分享
是有在考慮鐵捲門旁邊小門需不需要另外隔起來
廢氣之類的會進去嗎
也就是停完車
要再出來關鐵捲門
再從旁邊小門進去
這樣會比較好嗎
0
評分
取消
確定
引言
留言
回報
連結
只看樓主
文章分享
0/100
惡魔使者
惡魔使者
個人積分:22分
文章編號:61831478
22分
5樓
2016-09-29 20:28
我們是外面有鐵捲門+小門
車庫裡面還有一個大門
0
評分
取消
確定
引言
留言
回報
連結
只看此人
文章分享
0/100
wuchunche
wuchunche
個人積分:2分
文章編號:61833218
2分
6樓
2016-09-29 22:55
整理中,因為買來整間全部打掉重練,照片真的太多了!爲了車庫花很多時間規劃
2
評分
取消
確定
引言
留言
回報
連結
只看此人
文章分享
0/100
lawrence1974
lawrence1974
個人積分:1分
文章編號:61840594
1分
7樓
2016-09-30 14:48
樓上的 請問停車位 地板是抿石子嗎?? 我車庫也一直想用抿石子 但是一直沒看見有人這樣做過 請問有缺點嗎?謝謝
0
評分
取消
確定
引言
留言
回報
連結
只看此人
文章分享
0/100
wuchunche
wuchunche
個人積分:2分
文章編號:61840740
2分
8樓
2016-09-30 15:01
您眼睛很厲害!我整個停車位及外牆全部打掉採用泯石子!至於缺點,目前沒有。唯一缺點就是我不愛,因爲這是買給爸媽住,本來我是想把門面copy設計公司做成像這張圖
0
評分
取消
確定
引言
留言
回報
連結
只看此人
文章分享
0/100
rivegauche1979
rivegauche1979
個人積分:3184分
文章編號:61841646
3184分
9樓
2016-09-30 16:25
http://www.cplust.com/index.php?class=profiles2&id=168
個人覺得這戶是台灣此類別建案中的極品
0
評分
取消
確定
引言
留言
回報
連結
只看此人
文章分享
0/100
貪財是種美德
貪財是種美德
個人積分:14分
文章編號:61848643
14分
10樓
2016-10-01 9:49
wuchunche wrote:
整理中,因為買來整...(恕刪)
裡面裝潢真是高級
我也在裝潢中...相比之下真是不忍卒睹
0
評分
取消
確定
引言
留言
回報
連結
只看此人
文章分享
0/100
常用
表情
動作
物品
短文字
長文字
回覆
內文搜尋
搜尋
從 APP 打開
X
為提供您更優質的服務,本網站使用cookies。若您繼續瀏覽網頁,即表示您同意我們的cookies政策。
了解隱私權條款
我知道了!請關閉提示
X
加入好友名單
名稱
群組
全部朋友
描述
取消
確定
評分
取消
確定
評分
取消
確定
複製連結
複製
留言回報
留言違規
請選擇違規類型
提供個人聯絡資訊, 文不對題, 名稱選字不正確
散佈盜版資訊, 自刪文章
違規團購或問卷調查, 商品廣告或買賣
涉及政府法令, 攻擊、侮辱、非理性行為
詐騙/色情內容回報
上述事項以外的情況
取消
確定
Mobile01提醒您
您目前瀏覽的是行動版網頁
是否切換到電腦版網頁呢?
否
是