• 2

急.......關於LEICHT 宏第廚具價錢??

大家好:


建商附的廚具是.....LEICHT 宏第廚具


上圖估價不含家電含稅 315230
下圖估價不含家電含稅 307232

圖二少了上櫃 加了抽屜櫃 但是價錢竟然只有少8000????

合理嗎????該怎麼議價????
救救我orz 天生不會殺價阿QQ





急.......關於LEICHT 宏第廚具價錢??
急.......關於LEICHT 宏第廚具價錢??
2014-11-18 13:00 發佈
文章關鍵字 價錢 leicht
1. LEICHT 有很多系列的廚具,不清楚建商送的是那一個系列,原廠是都在德國生產的
2. 五金部份可能用的是BLUM或Häfele 的五金,廚具的五金部份,佔的單價不低
3. 不知道是不是建商用國內的廚具,但只是掛上LEICHT的牌子???
4. 因為上下只有差別是上櫃,但裡面的五金部份看不到用料跟數量
5. 安裝部份的費用,還有運費!!!



請問這板材好嗎??
附上櫃體報價(未稅)....其他都沒寫
QQ

只差8000心裡不大平衡 orz
美耐板很糟嗎?別家廚具有批評



juniejean wrote:
大家好: 建...(恕刪)


這很正常,抽屜不便宜....抽屜也是五金系列的,一個也要幾千元...

chi_ying@hotmail.com wrote:
這很正常,抽屜不便宜...(恕刪)


美耐板很糟嗎???
基本上比起水晶面板或結晶鋼烤真的算比較差(就清潔度及美觀度及耐用度)

但要考量給誰用? 假如是給房客或是不常開伙的真的就還好了~~~


另外補充說明,用無把手的真的也會比較貴....



無把手 板材 賽麗石 是建商選的
我都還沒自己挑咧 價錢就很高了
><
這是要給自己用的 不是給房客用的

給房客用就不會煩惱了QQ

我常開伙 :(



juniejean wrote:
無把手 板材 賽麗石...(恕刪)


光賽麗石這項就有點水準了,
比較同樣大小的賽麗石和杜邦石,
價格差距非常大....

我上一個住所建商也是用LEICHT廚櫃,
可惜石面只是杜邦石而已....
現在自己在麗舍訂了一套ALNO廚櫃,
就特別改用西班牙賽麗石....








我們家廚具門片都是美耐板喲

現在的美耐板可塑性高, 花樣也很多變,
仿木紋作起來很有質感 (不過當然比不過實木板)

而且清潔和維護都比結晶板或烤漆板容易多了....

建商附的廚具有樣品可以看了嗎? 建議可以去看一下再決定!

ps 我們家檯面也是結晶石英石(不是賽麗石, 也不是三星的, 是西班牙的新品牌), 耐熱溫度高, 可以直接將烤盤放上去

dinkum

這個木紋超美超喜歡~~請問可以提供美耐板型號的相關資訊嗎?感謝!

2022-12-09 22:11


你家廚房好美喔~~~是我喜歡的樣子
看來要去哥德一趟
只是預算370000 含家電 開放式廚房無上櫃
不知道做得起來嗎?
><




黑框內可更換
.......

其實對CLEAN UP的淨水槽很有興趣 但是CLEAN UP價位太高

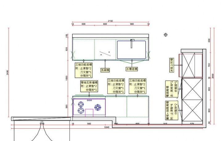
附上平面圖





juniejean wrote:
看來要去哥德一趟...(恕刪)



嗯..個人建議, 如果建商的廚具供應商還不錯,而且材料用得不錯的話,
你還是先跟這個供應商談談

因為整個退掉重作, 要花的錢可是退費的好幾倍...






  • 2
內文搜尋
X
評分
評分
複製連結
Mobile01提醒您
您目前瀏覽的是行動版網頁
是否切換到電腦版網頁呢?