


-----------------------------------------------------------------------------------
簽約後,和父母幾經討論,決定要重新裝潢一下,雖然買了這間位於板橋的房子銀彈都梭了,但最終還是決定多貸一點來裝潢因為一句話 「搬進去後,就不會想裝潢了」...
來吧,我們先來看看屋子的原樣(前屋主還沒清空樣)
![[開箱] 一個歸屬 一個家](http://attach.mobile01.com/attach/201312/mobile01-ea85100d9514eb87633254706a4fd02b.jpg)
![[開箱] 一個歸屬 一個家](http://attach.mobile01.com/attach/201312/mobile01-9daf655a2fb3133e03ac1ef988347040.jpg)
![[開箱] 一個歸屬 一個家](http://attach.mobile01.com/attach/201312/mobile01-a00d87e98df8e39697540876195d423e.jpg)
![[開箱] 一個歸屬 一個家](http://attach.mobile01.com/attach/201312/mobile01-8ae5f8af9703a521d2565d562adf5962.jpg)
清空後
![[開箱] 一個歸屬 一個家](http://attach.mobile01.com/attach/201312/mobile01-5adbf8b9146628b1d4b6a6678e49da76.jpg)
![[開箱] 一個歸屬 一個家](http://attach.mobile01.com/attach/201312/mobile01-e59810d72f8e35a2b4c3d08ccb62d9aa.jpg)
![[開箱] 一個歸屬 一個家](http://attach.mobile01.com/attach/201312/mobile01-aa289352b5f16c503eed559706b7a5f6.jpg)
![[開箱] 一個歸屬 一個家](http://attach.mobile01.com/attach/201312/mobile01-c914edd83a4bc4b7604f100c327fc5e9.jpg)
![[開箱] 一個歸屬 一個家](http://attach.mobile01.com/attach/201312/mobile01-fe116f0f14751932ad6bebd9e3041684.jpg)
原格局圖,原本是三房格局
![[開箱] 一個歸屬 一個家](http://attach.mobile01.com/attach/201312/mobile01-a45f31e6e2eecea0ddac1ee4c2ee377a.jpg)
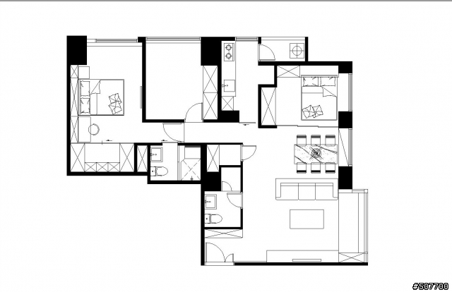
定稿格局圖,,我們也想維持三房格局,但又不想視野看起擁擠,所以當下立馬決定打掉跟餐廳相連的一面牆用玻璃拉門取代...並做為書房或臨時客房
![[開箱] 一個歸屬 一個家](http://attach.mobile01.com/attach/201312/mobile01-40a3f172e020c30722fbb9d7b8aa852f.jpg)
格局決定後,就是破壞的開始!!!
拆阿!!! 對!!連原本的大門也被我拆了....

![[開箱] 一個歸屬 一個家](http://attach.mobile01.com/attach/201312/mobile01-3cde57485b523649ab6554704562a02c.jpg)
![[開箱] 一個歸屬 一個家](http://attach.mobile01.com/attach/201312/mobile01-4abec4e4e1fd7c001ec0f0e703754c00.jpg)
![[開箱] 一個歸屬 一個家](http://attach.mobile01.com/attach/201312/mobile01-eb6897039fa6e7fcd018fdfad44515dd.jpg)
![[開箱] 一個歸屬 一個家](http://attach.mobile01.com/attach/201312/mobile01-e2779054abf213827f6590b26ea1e0f1.jpg)
![[開箱] 一個歸屬 一個家](http://attach.mobile01.com/attach/201312/mobile01-6ed9f5b81844563088a27c496affaf6b.jpg)
然後就是打管、木工的進場
![[開箱] 一個歸屬 一個家](http://attach.mobile01.com/attach/201312/mobile01-3d61fe23af1cacc4953c5dffaea290c8.jpg)
![[開箱] 一個歸屬 一個家](http://attach.mobile01.com/attach/201312/mobile01-a2ddde14bc4774fb07db4e1e59761b72.jpg)
![[開箱] 一個歸屬 一個家](http://attach.mobile01.com/attach/201312/mobile01-bae9b558e85db5da909d6d9d87e9d965.jpg)
![[開箱] 一個歸屬 一個家](http://attach.mobile01.com/attach/201312/mobile01-12a42097d52591cf9938fa1fd4d23d20.jpg)
![[開箱] 一個歸屬 一個家](http://attach.mobile01.com/attach/201312/mobile01-67844c773ba8073611acd2cd459c2014.jpg)
![[開箱] 一個歸屬 一個家](http://attach.mobile01.com/attach/201312/mobile01-88063f7630d07663a770e563aa05737c.jpg)
這中間為了房子橫貫的一隻大樑傷透腦筋,來來回回改了好幾次設計....
好了好了,最後大家想看的完工照....
不過先給大家看一下3D圖... 看看最後有沒有一樣
![[開箱] 一個歸屬 一個家](http://attach.mobile01.com/attach/201312/mobile01-a45a45010114ed26db306cdc53cc4919.jpg)
![[開箱] 一個歸屬 一個家](http://attach.mobile01.com/attach/201312/mobile01-eb601918d78eb3ce66f58e53fcceb3fc.jpg)
![[開箱] 一個歸屬 一個家](http://attach.mobile01.com/attach/201312/mobile01-76f8f3a3ee425201b1460e8e3dd06ffb.jpg)
![[開箱] 一個歸屬 一個家](http://attach.mobile01.com/attach/201312/mobile01-ecdb9a4c902aea76adc923b21f8adb81.jpg)
(3D圖還是能出的話盡量出,我個人覺得才不會有太大誤差...)
完工照!!!


![[開箱] 一個歸屬 一個家](http://attach.mobile01.com/attach/201312/mobile01-b374bae39ce3c871b0f92be799d5b944.jpg)
![[開箱] 一個歸屬 一個家](http://attach.mobile01.com/attach/201312/mobile01-e237982473f6a3340a4bf9ce7f8c485f.jpg)
![[開箱] 一個歸屬 一個家](http://attach.mobile01.com/attach/201312/mobile01-1f4d61554aea5f4872ed0dcf5a1fab8f.jpg)
![[開箱] 一個歸屬 一個家](http://attach.mobile01.com/attach/201312/mobile01-9657030c2b10b632d47bc90570322d00.jpg)
![[開箱] 一個歸屬 一個家](http://attach.mobile01.com/attach/201312/mobile01-cd9940aff11f65bdc39020eb6b4326a7.jpg)
![[開箱] 一個歸屬 一個家](http://attach.mobile01.com/attach/201312/mobile01-40775e2e9f9dde2fdf501aab38403552.jpg)
![[開箱] 一個歸屬 一個家](http://attach.mobile01.com/attach/201312/mobile01-754911287a5bb421978183538bc71523.jpg)
![[開箱] 一個歸屬 一個家](http://attach.mobile01.com/attach/201312/mobile01-ebb6527b7a936b582345b690a121a9ac.jpg)
![[開箱] 一個歸屬 一個家](http://attach.mobile01.com/attach/201312/mobile01-d19be91a1ec2d2ba0aa2ef19f8ed212a.jpg)
--------------------------------------------------------------------------------
開箱結束!!!
其實從裝潢開始,從設計到討論到天天去工地監工做修改,這半年的時間,真的很累,寫這篇文時,貼貼照片很快就結束了,但每天下班後趕去工地然後又回家想著那邊需要改善跟設計師溝通,裝潢真的很辛苦阿!!
不過,當第一次帶老婆(那時的女友)去看剛買的房子時,她說出一句「是家耶!!」 那時,我就覺得這是我該付出的....
一個歸屬,一個家....
感謝老爸老爸老姊的意見,感謝設計師,感謝老婆...讓我有個歸屬...
以上住了快一年後的第一次開箱很簡短,不要鞭我阿!!!

