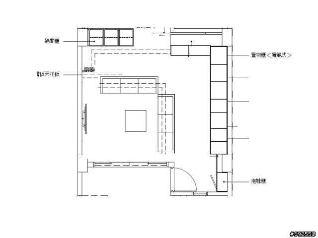
小弟目前在規劃客廳的格局,
因為我的客廳寬有 5.8米 ,
有以下需求:
第一:怕電視距離太遠。(買不起大電視,且不喜歡投影)
第二:因為有小朋友,客廳的收納要多。
第三:電視牆面喜歡用石材(米白色)
目前有以下兩種規劃:
一:將後面規劃一個小儲物室,約120cm寬。但是缺點為從外面進來時,會有斜角,覺得不太好。

二:這是我想到的將電視牆拉往前面,作一個約150左右的石材牆面來壁掛電視。後面作隱藏式櫃體。
但是有個問題,我的電源及電視網路訊號線的插座都已做在牆面上了,如何拉到前面的電視牆呢?
走下面?打地板? 還是走上面(但是電視牆只有150cm高)?要怎麼走呢?


































































































