原本有四房的格局 但因為暫時只有兩人和一隻狗居住 所以空間想要保持大 採光好
喜歡收納簡單 開放單純簡單的空間感
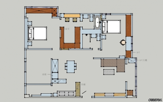
原本的格局


自己的想法是 將 次臥轉成主臥
因為衛浴都打算重新整理 所以 將一間浴室轉向開口
將兩間次臥打成一間 用衣櫃區隔空間成為 更衣室
不知道台中市否有推薦的衛浴泥作師傅 和衛浴規劃?

自己初步的想法是如下
不知道版上的達人們是否有更好的建議和想法
主臥將陽台外推 原本的冷氣牆打掉 不知道這樣會不會影響結構? 想打掉的牆面都是在樑下
推出去的陽台空間 下方作成收納的櫃子上方可以坐著看書 和保持採光
第三間空房暫時當儲存是不處理

這樣的規劃 除了次臥的床頭對著廁所 必須作床頭櫃處理一下 是否還有地方是有風水的忌諱呢?




























































































