大約年底之後會入住新居(中古屋翻修)
由於是自己一個人住,想對自己好一點
想在客廳裝設家庭劇院(其餘生活家電都已買好)
以前從沒用過家庭劇院,都是電視的內建喇叭
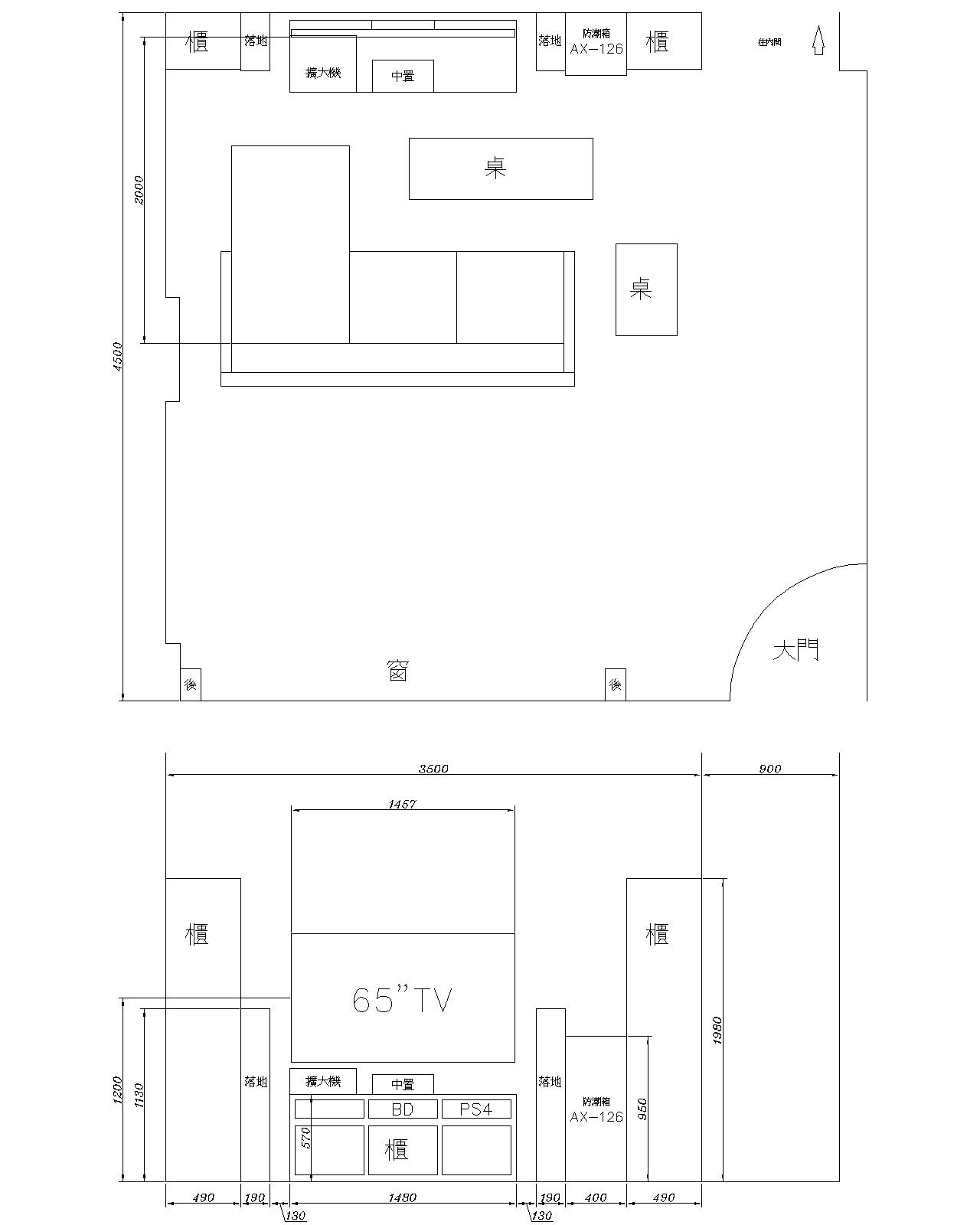
客廳空間大約6坪(4.5米*4.5米)
不過因為往內的走道寬緣故,電視牆面只有3.5米
下圖是自己用CAD簡單弄的圖面(單位是mm)
![[新手]新居客廳的家庭劇院擺設請益](http://attach.mobile01.com/attach/201712/mobile01-f1d850c13d58c526d17574472db32e3d.jpg)
用途是看電影跟玩遊戲
劇院尺寸是先抓Pioneer擴大機VSX-LX101-B+JAMO喇叭組S628HCS來擺
(因為整組價格五萬多,還在可接受範圍)
有幾個問題想請教各位發燒前輩
1.兩側的高櫃如果這樣放,對落地音響會有嚴重干擾或是什麼問題嗎?(櫃子是實木+玻璃門板)
2.後方的書架喇叭想釘在窗戶旁的牆壁,這樣會離太遠嗎?
(因為4K電視的最佳觀看距離是尺寸*3,我的65吋觀看距離大約是兩米)
3.整體有更建議的擺放位置嗎?(家具還未購入,都可更改)





























































































