• 3

[新手]新居客廳的家庭劇院擺設請益


570 wrote:
1. 櫃子會干擾,...(恕刪)


1.好喔,那就是擺喇叭附近的櫃子不要買有門片的

2.所謂音壓加料是什麼意思呀?

3.防潮箱裡面是要放遊戲片跟電影BD,想說放前面就近
所以一樣是建議不要放在喇叭旁邊嗎?

boky1111 wrote:
發燒音響版的前輩們...(恕刪)

電視高度比正常高了20公分,如果電視櫃只是預估,考慮再重新規劃過。

Robin088 wrote:
電視高度比正常高了20...(恕刪)


嗯,這個我有注意到
因為我沒有裝潢,所以電視櫃是找網路現成的套用(實木櫃)

如果要再降的話,可能要找坊間的家具行(討厭的預感)
不然就是在買個矮櫃放在旁邊給擴大機吃

但是剛剛看了下圖面
降20就變成中置會擋到電視下緣(苦惱)

boky1111 wrote:
嗯,這個我有注意到
因為我沒有裝潢,所以電視櫃是找網路現成的套用(實木櫃)

如果要再降的話,可能要找坊間的家具行(討厭的預感)
不然就是在買個矮櫃放在旁邊給擴大機吃

但是剛剛看了下圖面
降20就變成中置會擋到電視下緣(苦惱)

我的狀況讓你參考。

因為電視櫃我為了收納,所以比木工標準高度多了10公分,所以電視架中心比原先設定再高10公分,變成110公分。

實際電視裝上去又比預期高10公分(不是每部電視的安裝高度都在中心位置),所以中心點落在120公分左右。

因為我的深度較深,坐在沙發還可以接受這個高度,但以您的距離觀看一定要抬頭,這要注意。

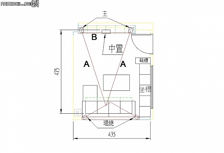
另外主喇叭的擺設,手冊建議A=A>B會是比較好的設定。

供您參考。




我比較好奇 你們喇叭都擺得在後面了吧

你都用小落地啦叭嗎
個人去年裝潢完的小小建議
1.電視櫃最好找長度210cm高度40cm的,這樣電視的高度會比較佳喔!
不然抬著頭看電視真的很不舒服說,長度夠你兩邊擺擴大機撥放機和遊戲機囉!
地面剩餘的90cm還可以放重低音呢!
2.你的空間其實不大前置不需要用到落地喇叭吧!用書架或衛星喇叭可以
讓你擺設的自由度更方便喔!而且喇叭最好盡量往兩邊牆面靠然後做角度
音場會大不同喔!而且中間就會做出以後裝設投影布幕的空間囉!(不要說你不想,
當初我也很鐵齒)
3.如果你在北部的話可以去鶯歌的盛昱音響看看,其實5萬可以有更好的選擇喔!
擴大機加5.1是有機會的,而且還會免費幫你安裝擺位不用自己傷那麼多腦筋囉!
以上參考看看囉!

Robin088 wrote:
我的狀況讓你參考。...(恕刪)


感謝分享!
我有寫信去問沙發的實際高度(坐後下陷的我自己會評估)
等回信了

不過看來我跟你的差別就是櫃子了
你的擴大機可以放在下櫃體
我的因為格子不夠高只能放在上面(嘖嘖)
不然會跟你差不多高

至於三角距離我還真的忘記了
感謝提醒

然後你的觀看距離好遠啊...四米半
是2k還是4k電視?
四米半的4k觀看尺寸可以到150吋

boky1111 wrote:
感謝分享!我有寫信...(恕刪)

我的電視是4K的,原本沒計畫換65吋的。

裝潢好搬進來住才發現原本的50吋太小了。

音響也是上週五買的,音箱線都還沒拉。

如果重新裝潢,電視櫃我就不做了,買現成的音響櫃,主喇叭落地會比較好。

擴大機擺在櫃子內,空間很侷促,線材沒地方塞,這是我目前遇到的問題。

hiann wrote:
個人去年裝潢完的小...(恕刪)


感謝建議
因為我是找現成的實木電視櫃
如果是要長矮型的可能變成是合板+密集板
不然就是找家具行....

至於空間不大是真的
但六坪也足夠啦
而落地喇叭是因為整套販售的緣故
可是看舊文也有人3~4坪就在擺了

然後投影機當初也有注意
不過我想等價格與耗材更普及化,再去考慮
畢竟現在是單身
以後還有很大的變動可能

Robin088 wrote:
我的電視是4K的,...(恕刪)


可是這樣你不就前面要再多一個音響櫃?

然後你電視擺這麼遠
其實可以不用買到4k的
因為根據國內外網站研究,4k電視超過建議距離
看起來是跟2k不會差距太多

我自己去店面實際看
坐在建議距離瀏覽,有電影院的觀看感
畫面又大又美
不過實際還是要等入厝安裝的時候才知道
  • 3
內文搜尋
X
評分
評分
複製連結
Mobile01提醒您
您目前瀏覽的是行動版網頁
是否切換到電腦版網頁呢?