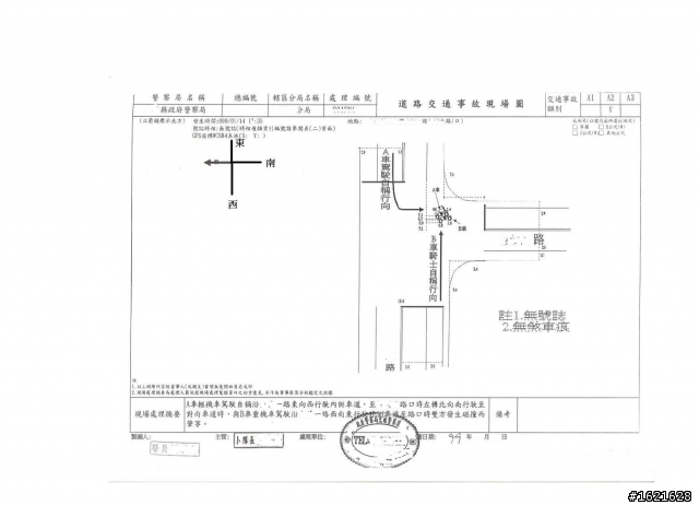
今年1月中旬某一天的下午正要去接小孩放學,我由西往東其機車行駛在外側車道,經過一個無號誌燈的T字路口,結果在叉路口遇到一位由東往西行駛在內側車道搶先左轉彎的女騎士,結果就是煞車不及兩台機車碰撞在一起,我和她都受傷,兩人都有去醫院就醫,不過她傷的比較嚴重(本來說是右肩韌帶斷了,隔了一天說是鎖骨斷了,這應該是真的,因為隔天手術後我有去醫院看她, 到了3月中旬調解時則是韌帶損傷、右手臂神經叢受損、開刀作肌腱移轉手術,),到了3月上旬她戶籍地的鄉公所調解委員會來電通知我去參加調解,應是她申請的,當然我依約準時前往.結果哩,一開始她說我要賠償他15萬(因為她說她的右手臂神經叢斷了,恐有殘廢之虞)。因為我事先有去警局申請車禍事故初步分析表,於是拿著這份資料向她解釋,如果妳遵守交通規格不要搶先轉彎,這場車禍就不會發生,況且我並沒有超速等其他違規事項。(警方初判她『轉彎車不讓直行車先行致肇事』,而我呢,當然也寫了一條『未注意車前狀況致肇事』),想當然爾,她就是要我賠錢給她,調解無結果,離開調解會之前,我私下問了調解委員一句話「委員大人,你看我長的像是一隻肥羊嗎」?
各位前輩啊,有沒有什麼好的建議?我該怎麼作才能維護自己的權益.
車禍事故現場圖
